Exclusive



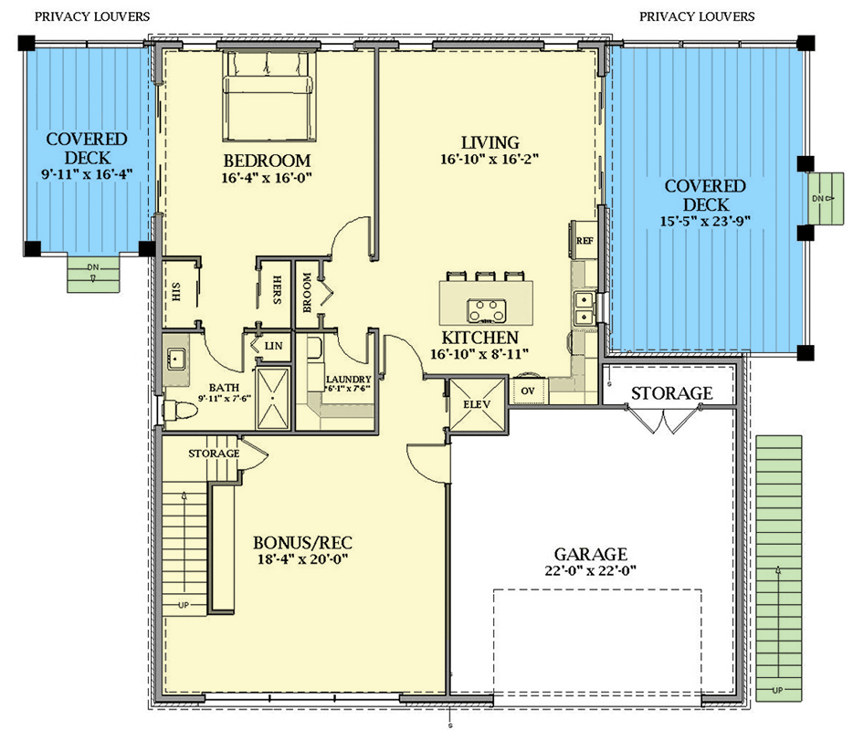
Total Heated Area
4,060 sq. ft.
Lower Level
1,491 sq. ft.
1st Floor
1,455 sq. ft.
2nd Floor
1,114 sq. ft.
Porch, Combined
1,652 sq. ft.
Bedrooms
4
Full bathrooms
3
Half bathrooms
2
Standard Foundations
Slab
Exterior Walls
Block / CMU (main floor)
Optional Type(s)
2x6
Width
61' 0"
Depth
51' 0"
Max Ridge Height
43' 6"
Type
Drive Under
Area
506 sq. ft.
Count
2 Cars
Entry Location
Front
Lower Level
10'
First Floor
10'
Second Floor
9'
Primary Pitch
2 on 12
Framing Type
Stick
Total Heated Area
4,060 sq. ft.
Lower Level
1,491 sq. ft.
1st Floor
1,455 sq. ft.
2nd Floor
1,114 sq. ft.
Porch, Combined
1,652 sq. ft.
Bedrooms
4
Full bathrooms
3
Half bathrooms
2
Standard Foundations
Slab
Exterior Walls
Block / CMU (main floor)
Optional Type(s)
2x6
Width
61' 0"
Depth
51' 0"
Max Ridge Height
43' 6"
Type
Drive Under
Area
506 sq. ft.
Count
2 Cars
Entry Location
Front
Lower Level
10'
First Floor
10'
Second Floor
9'
Primary Pitch
2 on 12
Framing Type
Stick