Exclusive




Total Heated Area
2,340 sq. ft.
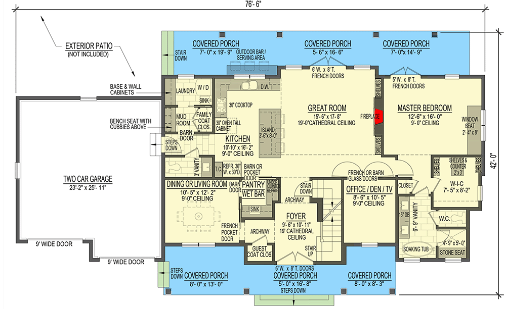
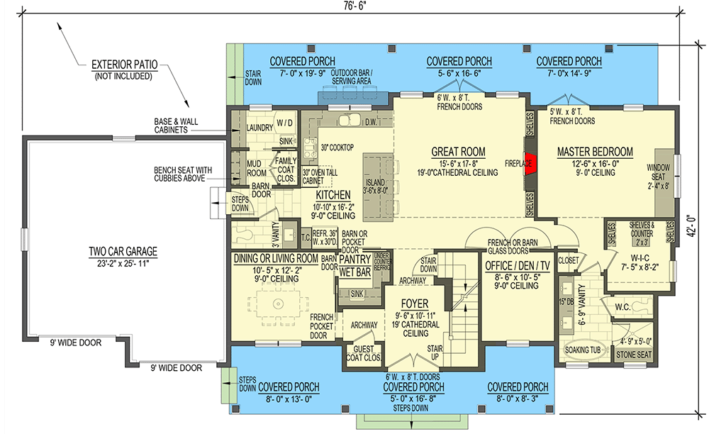
1st Floor
1,558 sq. ft.
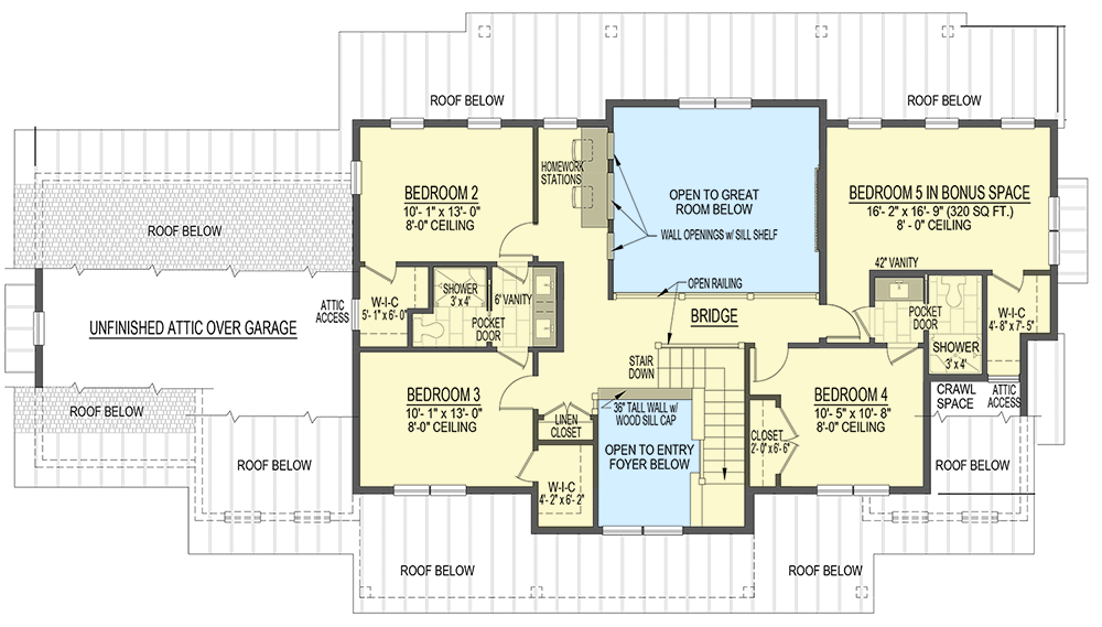
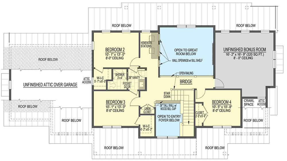
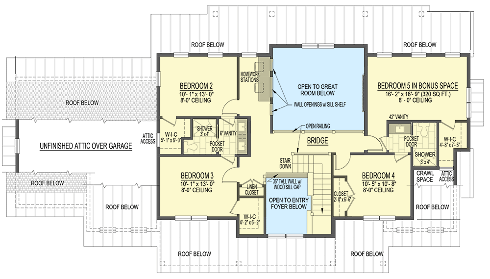
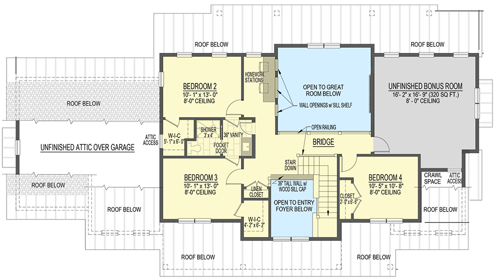
2nd Floor
742 sq. ft.
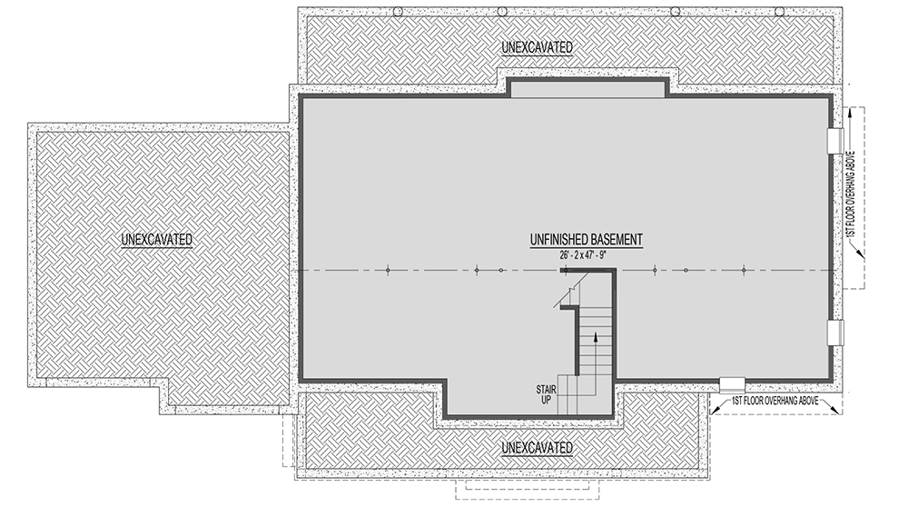
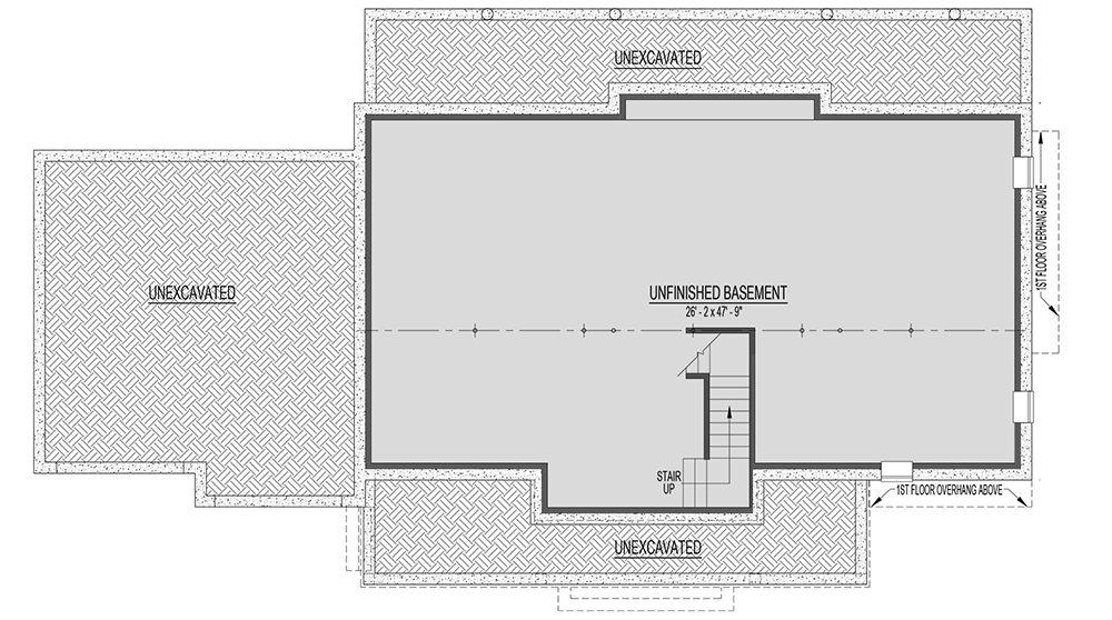
Basement Unfinished
1,558 sq. ft.
Bonus
320 sq. ft.
Porch, Combined
588 sq. ft.
Bedrooms
4 or 5
Full bathrooms
2 or 3
Half bathrooms
1
Standard Foundations
Basement
Exterior Walls
2x6
Width
76' 0"
Depth
42' 0"
Max Ridge Height
30' 0"
Type
Attached
Area
613 sq. ft.
Count
2 Cars
Entry Location
Front
First Floor
9'
Second Floor
8'
Total Heated Area
2,340 sq. ft.
1st Floor
1,558 sq. ft.
2nd Floor
742 sq. ft.
Basement Unfinished
1,558 sq. ft.
Bonus
320 sq. ft.
Porch, Combined
588 sq. ft.
Bedrooms
4 or 5
Full bathrooms
2 or 3
Half bathrooms
1
Standard Foundations
Basement
Exterior Walls
2x6
Width
76' 0"
Depth
42' 0"
Max Ridge Height
30' 0"
Type
Attached
Area
613 sq. ft.
Count
2 Cars
Entry Location
Front
First Floor
9'
Second Floor
8'