


This plan has 7 pages as follows:
Total Heated Area
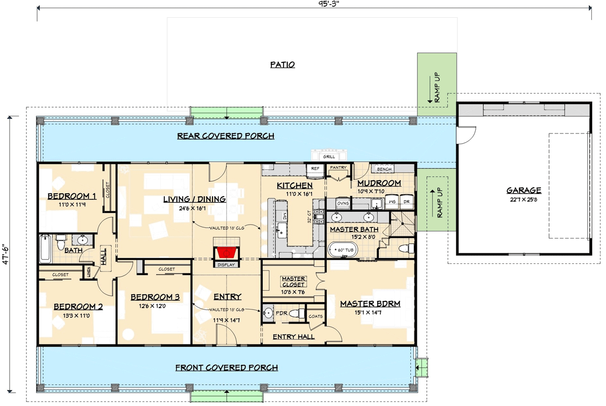
2,058 sq. ft.
1st Floor
2,058 sq. ft.
Porch, Front
515 sq. ft.
Porch, Rear
515 sq. ft.
Bedrooms
4
Full bathrooms
2
Half bathrooms
1
Standard Foundations
Crawl
Exterior Walls
2x4
Optional Type(s)
2x6
Width
95' 5"
Depth
46' 10"
Max Ridge Height
23' 0"
Type
Detached
Area
613 sq. ft.
Count
2 Cars
Entry Location
Front
First Floor
9'
Room
Ceiling Type
Height
Entry
Vaulted
17' 10''
Living Room
Vaulted
17' 10''
Dining Room
Vaulted
17' 10''
Primary Pitch
10 on 12
Secondary Pitch
4 on 12
Framing Type
Stick
Total Heated Area
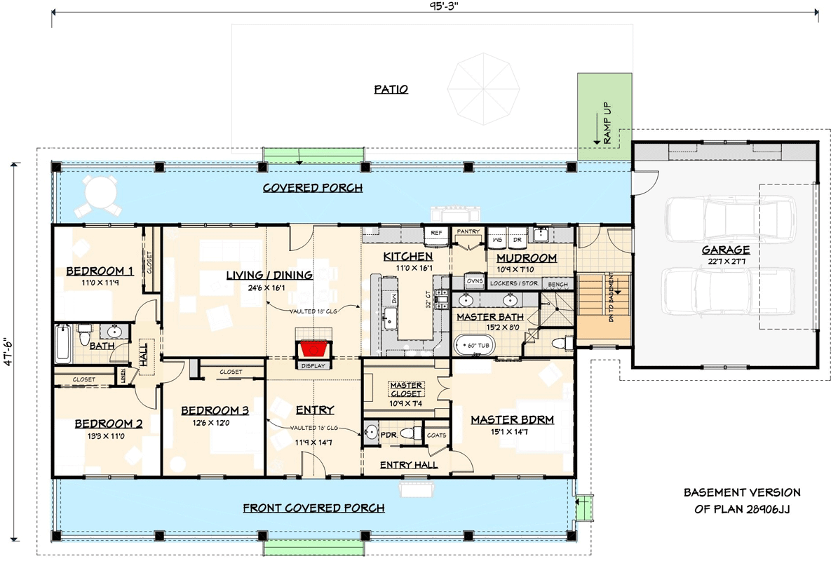
2,058 sq. ft.
1st Floor
2,058 sq. ft.
Porch, Front
515 sq. ft.
Porch, Rear
515 sq. ft.
Bedrooms
4
Full bathrooms
2
Half bathrooms
1
Standard Foundations
Crawl
Exterior Walls
2x4
Optional Type(s)
2x6
Width
95' 5"
Depth
46' 10"
Max Ridge Height
23' 0"
Type
Detached
Area
613 sq. ft.
Count
2 Cars
Entry Location
Front
First Floor
9'
Room
Ceiling Type
Height
Entry
Vaulted
17' 10''
Living Room
Vaulted
17' 10''
Dining Room
Vaulted
17' 10''
Primary Pitch
10 on 12
Secondary Pitch
4 on 12
Framing Type
Stick