LogoLogo TaglineLogo Tagline
Loading...
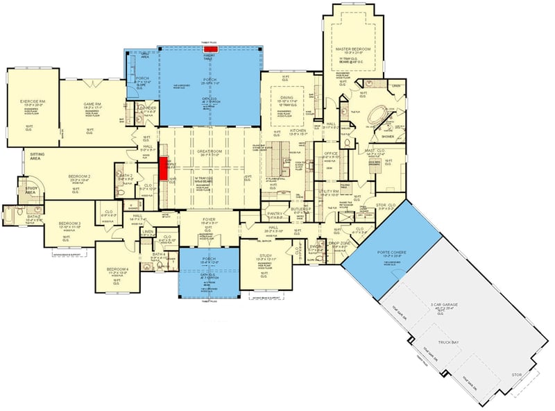
Plan 54047LK

Hill Country House Plan with Split Bedrooms and Outdoor Kitchen

Heated S.F.
4,788
Beds
4
Baths
4.5+
Stories
1
Cars
3

Floor Plan

Plan 54047LK

Floor Plan 1

Plan 54047LK

M-F 9am-5pm EST |

1-203-761-8500

Plan 54047LK: Hill Country House Plan with Split Bedrooms and Outdoor Kitchen - Floor Plan -  - Hill Country, Modern Farmhouse, Ranch, Rustic, Southwest

Plan Details

  • Encompassing 4,788 finished sq ft, this sprawling single-story Hill Country Modern Farmhouse features 4 bedrooms, 4 full baths, 2 half baths, and a 1,367 sq ft, 3-car attached garage.
  • Approach via a grand courtyard entry and porte cochere, leading to an inviting main entrance that ushers you into a thoughtfully designed layout featuring a dedicated home office and mudroom.
  • The main living area boasts 10-foot ceilings and an open flow, connecting prominent spaces ideal for gathering, complemented by a convenient butler walk-in pantry and wet bar for effortless entertaining.
  • The luxurious master suite, located on the first floor, offers a private retreat with direct laundry access, while secondary bedrooms are thoughtfully split for enhanced privacy.
  • A dedicated game/rec room provides an ideal space for recreation and entertainment, catering to diverse family activities.
  • Generous outdoor living spaces, including 860 sq ft of combined porches, feature an outdoor kitchen and a cozy outdoor fireplace, perfect for alfresco dining and relaxation.

What's Included

  • FLOOR PLAN: Showing all dimensions, window & door locations, laminated beams, columns, floor materials, ceiling heights, fireplace size, window & door schedules and specifications 
  • FOUNDATION PLAN: Dimensioned plan detailing the location and size of footings, slabs, brick shelves reinforcing steel, direction and size of ceiling joists, Laminate beam locations, specifications covering soil pressure, concrete strength, and requirements for the contractor to follow accepted practices. 
  • ELECTRICAL PLAN: Specifications, notes, schedules, and plan defining the location of panels, service, lighting fixtures, switches and outlets. 
  • ELEVATIONS: The front, rear and side elevations of the house as drawn. Shows placement of doors & windows on exterior of house, as well as roof pitches, and locations of chimney, exterior vents, etc. and also includes any necessary details. 
  • ROOF PLANS: Provides a bird's eye view of the roof's valleys, ridges and dormers, if applicable
  • BUILDING CROSS SECTION: Shows details of the house as though it were cut in slices from the roof to the foundation. The cross sections detail the construction of the home, insulation, flooring and roofing.
  • INTERIOR ELEVATIONS: Show's how the details of cabinets such as those found in the kitchen, bathroom and utility room, fireplaces and other special interior features.
  • NOTES AND DETAILS: Provides information for structural specifications, excavating and grading, masonry and concrete work, carpentry and wood specifications, thermal and moisture protection and specifications about drywall, tile, flooring, glazing, caulking and sealants.

What's Not Included

  • Architectural or Engineering Stamp - handled locally if required
  • Site Plan - handled locally when required
  • Mechanical Drawings (location of heating and air equipment and duct work) - your subcontractors handle this
  • Plumbing Drawings (drawings showing the actual plumbing pipe sizes and locations) - your subcontractors handle this
  • Energy calculations - handled locally when required

Starting at

Loading...
Price Match Guarantee
What's included?

FORMAT & LICENSE

Choose an option

$0

Not sure what to choose?

Pointer link icon

FOUNDATION

Choose an option

+$0

OPTIONS

Choose Additional Options

+$0

Loading...

Modify this Plan

Receive a free modification quote within 3 business days.

Loading...

Start with a Cost Report

Calculate the cost to build & furnish your home.

Loading...
Loading...

Square Footage Breakdown

Total Heated Area

4,788 sq. ft.

1st Floor

4,788 sq. ft.

Porch, Combined

860 sq. ft.

Beds/Baths

Bedrooms

4

Full bathrooms

4

Half bathrooms

2

Foundation Type

Standard Foundations

Slab

Exterior Walls

Exterior Walls

2x4

Optional Type(s)

2x6

Dimensions

Width

141' 0"

Depth

104' 0"

Garage

Type

Attached

Area

1367 sq. ft.

Count

3 Cars

Entry Location

Courtyard

Ceiling Heights

First Floor

10'

Roof Details

Framing Type

Stick

Architectural Style

Hill Country

Square Footage Breakdown

Total Heated Area

4,788 sq. ft.

1st Floor

4,788 sq. ft.

Porch, Combined

860 sq. ft.

Beds/Baths

Bedrooms

4

Full bathrooms

4

Half bathrooms

2

Foundation Type

Standard Foundations

Slab

Exterior Walls

Exterior Walls

2x4

Optional Type(s)

2x6

Dimensions

Width

141' 0"

Depth

104' 0"

Garage

Type

Attached

Area

1367 sq. ft.

Count

3 Cars

Entry Location

Courtyard

Ceiling Heights

First Floor

10'

Roof Details

Framing Type

Stick

* Please note that all sale prices and promotions featured on our website are subject to change without prior notice. While we strive to provide accurate and up-to-date information, occasional discrepancies may occur due to factors beyond our control. We encourage you to verify all details, including pricing and availability, before making any purchase. Exclusions or restrictions may apply to specific promotions. We reserve the right to modify or cancel any sale at our discretion. Thank you for your understanding and happy shopping!Let's go back to the top.