
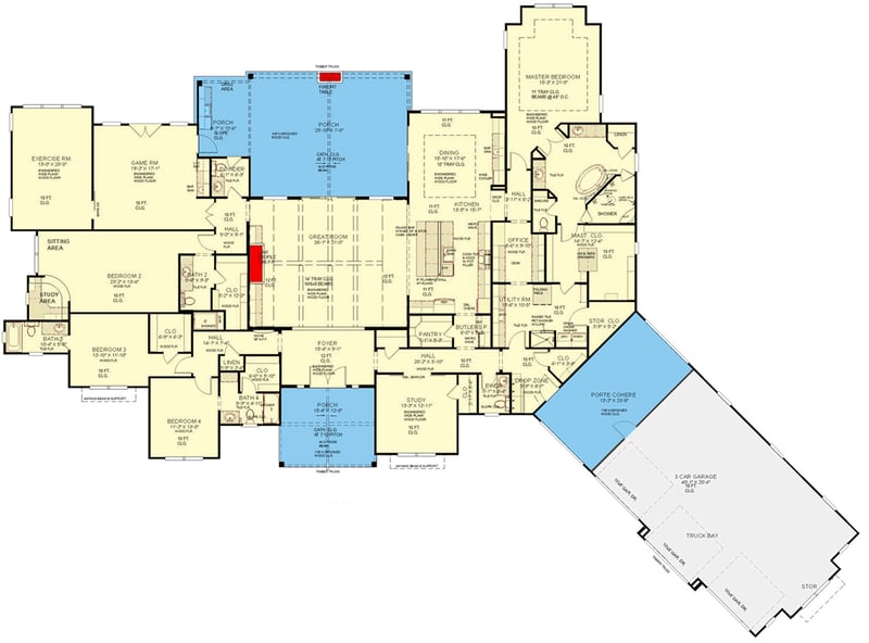
Total Heated Area
4,788 sq. ft.
1st Floor
4,788 sq. ft.
Porch, Combined
860 sq. ft.
Bedrooms
4
Full bathrooms
4
Half bathrooms
2
Standard Foundations
Slab
Exterior Walls
2x4
Optional Type(s)
2x6
Width
141' 0"
Depth
104' 0"
Type
Attached
Area
1367 sq. ft.
Count
3 Cars
Entry Location
Courtyard
First Floor
10'
Framing Type
Stick
Total Heated Area
4,788 sq. ft.
1st Floor
4,788 sq. ft.
Porch, Combined
860 sq. ft.
Bedrooms
4
Full bathrooms
4
Half bathrooms
2
Standard Foundations
Slab
Exterior Walls
2x4
Optional Type(s)
2x6
Width
141' 0"
Depth
104' 0"
Type
Attached
Area
1367 sq. ft.
Count
3 Cars
Entry Location
Courtyard
First Floor
10'
Framing Type
Stick