

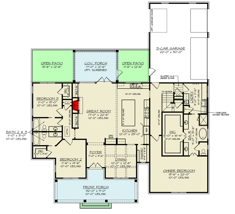
Total Heated Area
2,473 sq. ft.
1st Floor
2,473 sq. ft.
Bonus
757 sq. ft.
Porch, Front
310 sq. ft.
Porch, Rear
217 sq. ft.
Attic
558 sq. ft.
Bedrooms
3
Full bathrooms
3
Standard Foundations
Slab
Exterior Walls
2x4
Width
67' 3"
Depth
76' 3"
Max Ridge Height
24' 8"
Type
Attached
Area
687 sq. ft.
Count
3 Cars
Entry Location
Side
Primary Pitch
8 on 12
Secondary Pitch
12 on 12
Framing Type
Stick
Total Heated Area
2,473 sq. ft.
1st Floor
2,473 sq. ft.
Bonus
757 sq. ft.
Porch, Front
310 sq. ft.
Porch, Rear
217 sq. ft.
Attic
558 sq. ft.
Bedrooms
3
Full bathrooms
3
Standard Foundations
Slab
Exterior Walls
2x4
Width
67' 3"
Depth
76' 3"
Max Ridge Height
24' 8"
Type
Attached
Area
687 sq. ft.
Count
3 Cars
Entry Location
Side
Primary Pitch
8 on 12
Secondary Pitch
12 on 12
Framing Type
Stick