


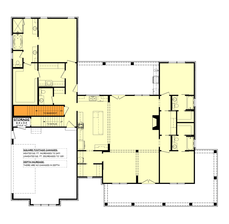
Total Heated Area
2,394 sq. ft.
1st Floor
2,394 sq. ft.
Bonus
390 sq. ft.
Porch, Front
427 sq. ft.
Porch, Rear
358 sq. ft.
Porch, Combined
785 sq. ft.
Storage
27 sq. ft.
Bedrooms
3 or 4
Full bathrooms
3 or 4
Half bathrooms
1
Standard Foundations
Slab
Exterior Walls
2x4
Optional Type(s)
2x6
Width
75' 0"
Depth
69' 0"
Max Ridge Height
29' 0"
Type
Attached
Area
651 sq. ft.
Count
2 Cars
Entry Location
Side
First Floor
10'
Bonus Room
8' 0''
Primary Pitch
9 on 12
Framing Type
Stick
Total Heated Area
2,394 sq. ft.
1st Floor
2,394 sq. ft.
Bonus
390 sq. ft.
Porch, Front
427 sq. ft.
Porch, Rear
358 sq. ft.
Porch, Combined
785 sq. ft.
Storage
27 sq. ft.
Bedrooms
3 or 4
Full bathrooms
3 or 4
Half bathrooms
1
Standard Foundations
Slab
Exterior Walls
2x4
Optional Type(s)
2x6
Width
75' 0"
Depth
69' 0"
Max Ridge Height
29' 0"
Type
Attached
Area
651 sq. ft.
Count
2 Cars
Entry Location
Side
First Floor
10'
Bonus Room
8' 0''
Primary Pitch
9 on 12
Framing Type
Stick