



We also include a list of building specifications, and notes for each page, with any important info the builder may need.
Total Heated Area
4,297 sq. ft.
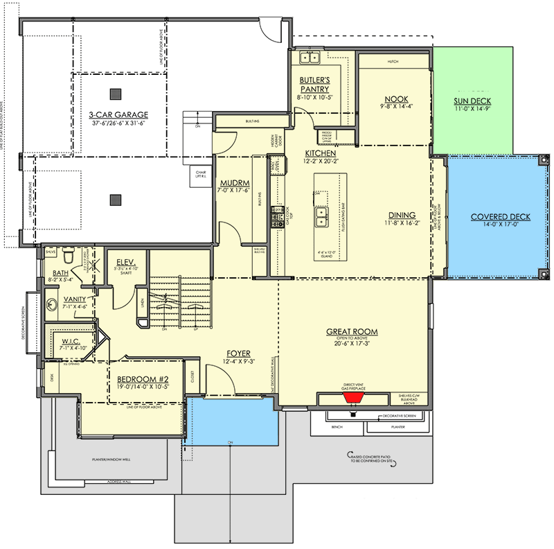
1st Floor
2,018 sq. ft.
2nd Floor
2,032 sq. ft.
3rd Floor
247 sq. ft.
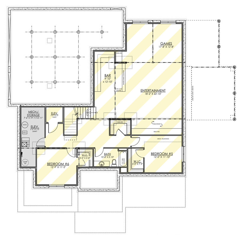
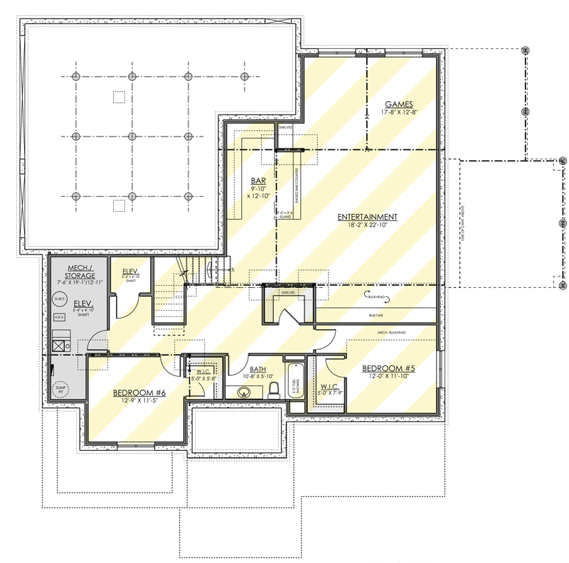
Optional Lower Level
1,620 sq. ft.
Bedrooms
4, 5, or 6
Full bathrooms
3 or 4
Half bathrooms
2
Standard Foundations
Basement
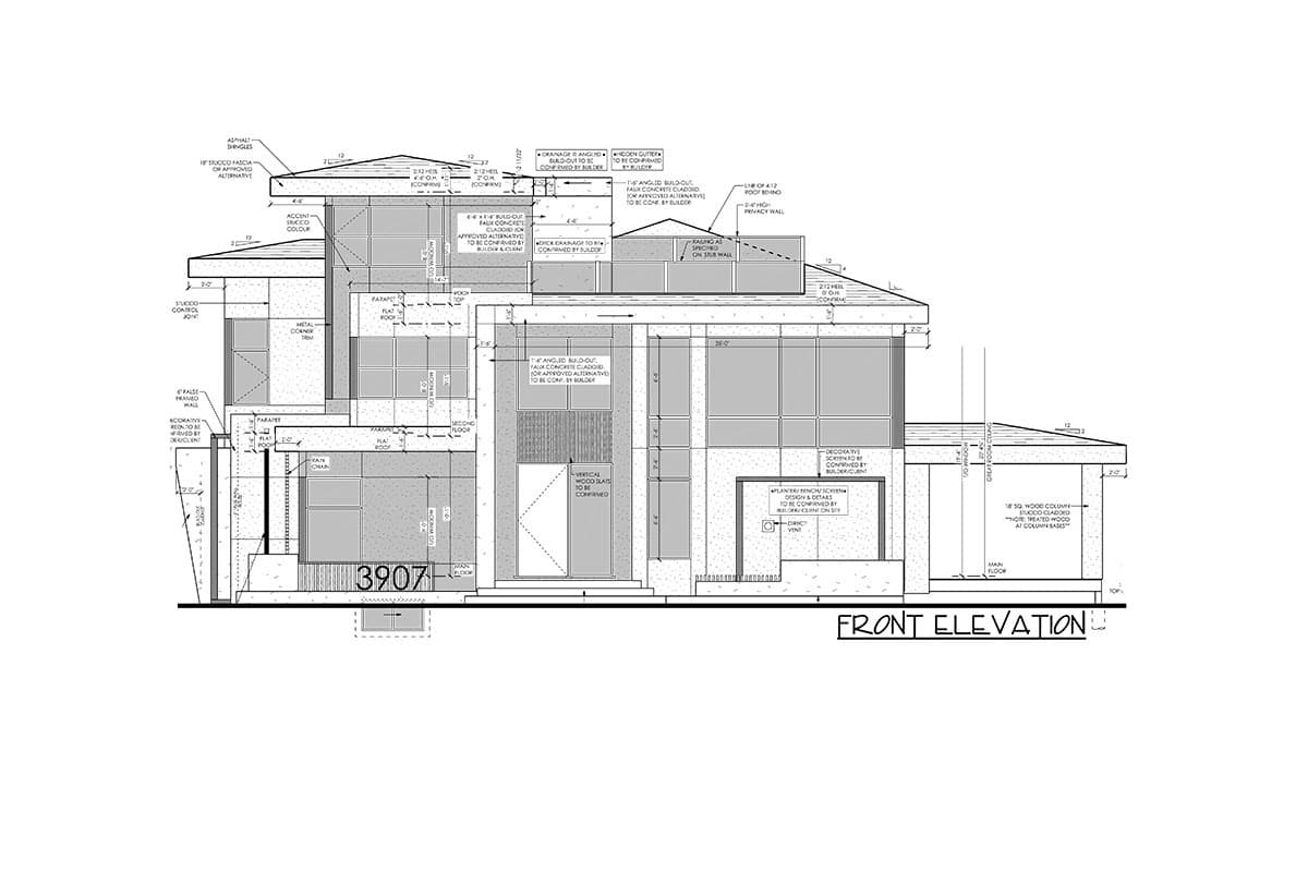
Exterior Walls
2x6
Width
58' 9"
Depth
57' 8"
Max Ridge Height
28' 4"
Type
Attached
Count
3 Cars
Entry Location
Side
Lower Level
10'
First Floor
10'
Second Floor
9'
Primary Pitch
2 on 12
Framing Type
Truss
Total Heated Area
4,297 sq. ft.
1st Floor
2,018 sq. ft.
2nd Floor
2,032 sq. ft.
3rd Floor
247 sq. ft.
Optional Lower Level
1,620 sq. ft.
Bedrooms
4, 5, or 6
Full bathrooms
3 or 4
Half bathrooms
2
Standard Foundations
Basement
Exterior Walls
2x6
Width
58' 9"
Depth
57' 8"
Max Ridge Height
28' 4"
Type
Attached
Count
3 Cars
Entry Location
Side
Lower Level
10'
First Floor
10'
Second Floor
9'
Primary Pitch
2 on 12
Framing Type
Truss