


We also include a list of building specifications, and notes for each page, with any important info the builder may need.
Total Heated Area
3,628 sq. ft.
1st Floor
1,803 sq. ft.
2nd Floor
1,825 sq. ft.
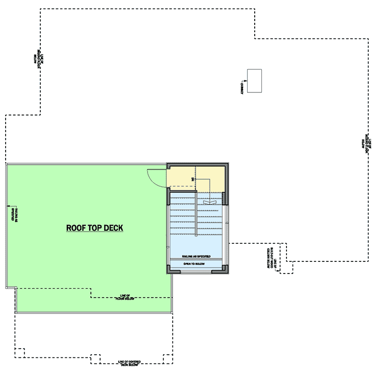
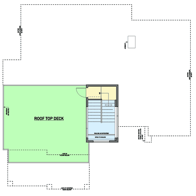
3rd Floor
179 sq. ft.
Optional Lower Level
1,349 sq. ft.
Loft
179 sq. ft.
Deck
461 sq. ft.
Entry
48 sq. ft.
Bedrooms
3 or 4
Full bathrooms
2 or 3
Half bathrooms
1
Standard Foundations
Basement
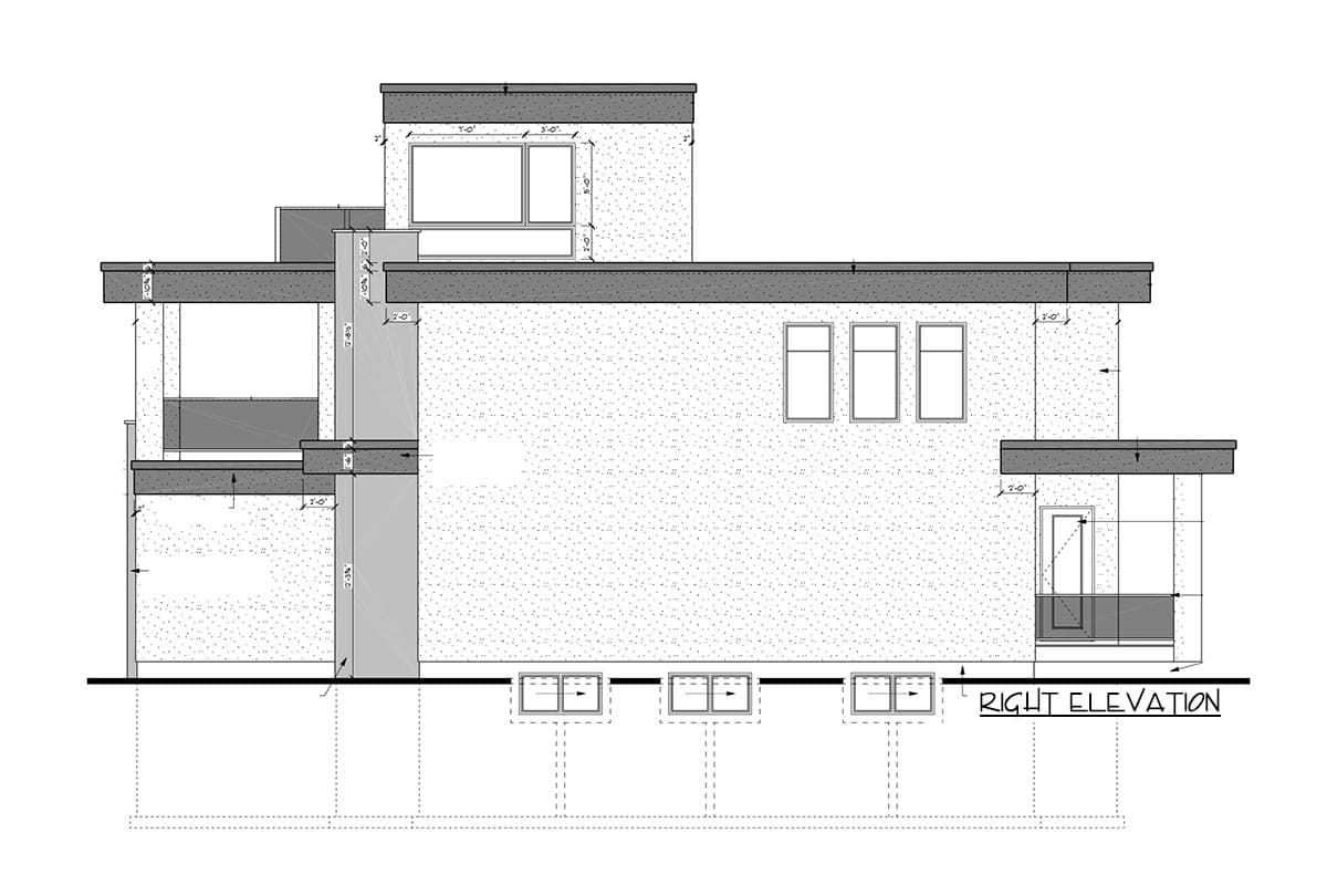
Exterior Walls
2x6
Width
58' 0"
Depth
65' 0"
Max Ridge Height
35' 9"
Type
Attached
Area
834 sq. ft.
Count
3 Cars
Entry Location
Front
First Floor
10'
Room
Ceiling Type
Height
Great Room
Second Story
0' 0''
Foyer
Second Story
0' 0''
Framing Type
Truss
Total Heated Area
3,628 sq. ft.
1st Floor
1,803 sq. ft.
2nd Floor
1,825 sq. ft.
3rd Floor
179 sq. ft.
Optional Lower Level
1,349 sq. ft.
Loft
179 sq. ft.
Deck
461 sq. ft.
Entry
48 sq. ft.
Bedrooms
3 or 4
Full bathrooms
2 or 3
Half bathrooms
1
Standard Foundations
Basement
Exterior Walls
2x6
Width
58' 0"
Depth
65' 0"
Max Ridge Height
35' 9"
Type
Attached
Area
834 sq. ft.
Count
3 Cars
Entry Location
Front
First Floor
10'
Room
Ceiling Type
Height
Great Room
Second Story
0' 0''
Foyer
Second Story
0' 0''
Framing Type
Truss