


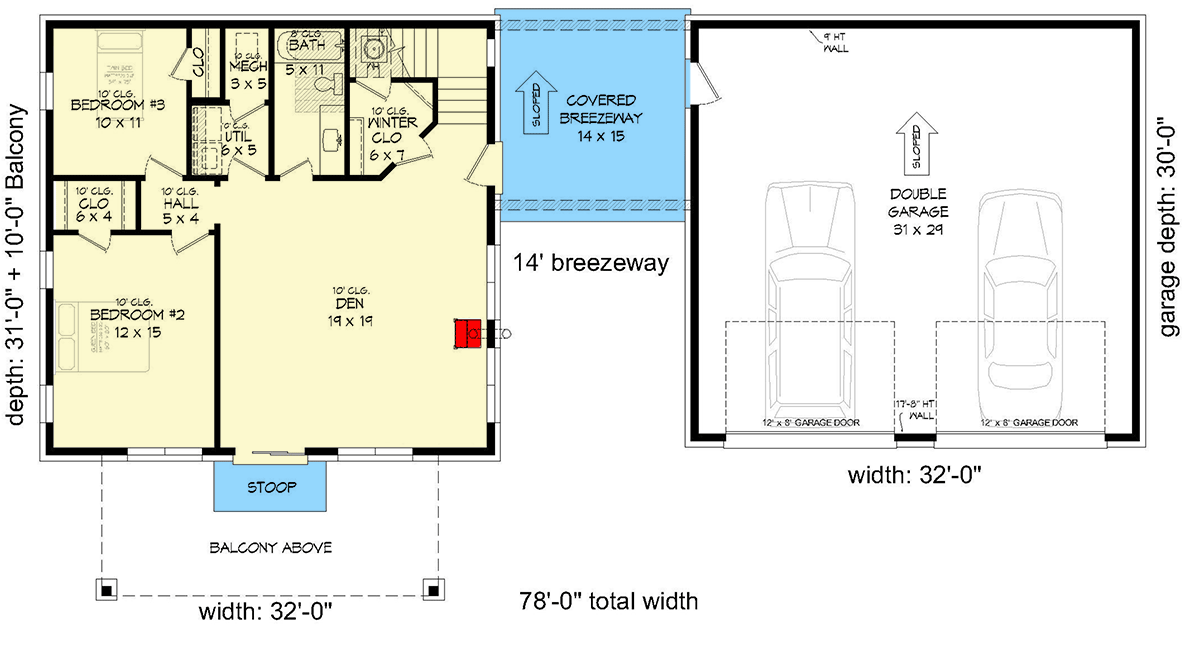
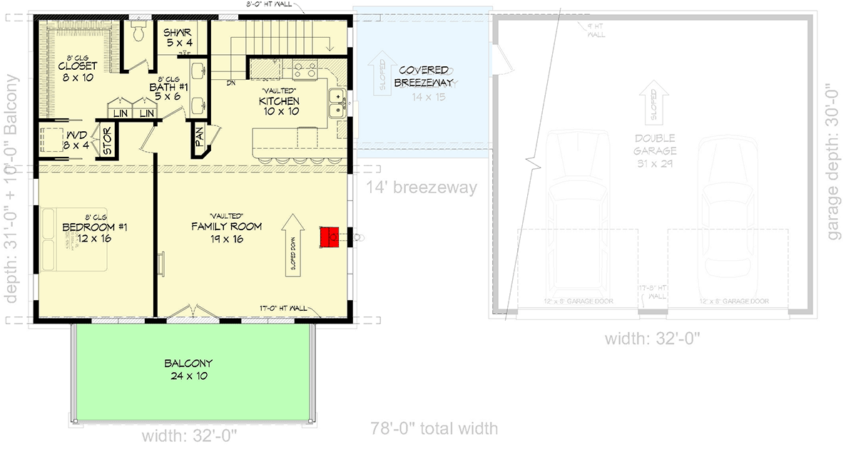
Total Heated Area
1,984 sq. ft.
1st Floor
992 sq. ft.
2nd Floor
992 sq. ft.
Porch, Combined
429 sq. ft.
Loft
200 sq. ft.
Bedrooms
3
Full bathrooms
2
Standard Foundations
Slab
Exterior Walls
2x6
Width
78' 0"
Depth
41' 0"
Max Ridge Height
20' 3"
Type
Attached
Area
960 sq. ft.
Count
2 Cars
Entry Location
Front
First Floor
10'
Second Floor
8'
Primary Pitch
3.5 on 12
Framing Type
Stick
Total Heated Area
1,984 sq. ft.
1st Floor
992 sq. ft.
2nd Floor
992 sq. ft.
Porch, Combined
429 sq. ft.
Loft
200 sq. ft.
Bedrooms
3
Full bathrooms
2
Standard Foundations
Slab
Exterior Walls
2x6
Width
78' 0"
Depth
41' 0"
Max Ridge Height
20' 3"
Type
Attached
Area
960 sq. ft.
Count
2 Cars
Entry Location
Front
First Floor
10'
Second Floor
8'
Primary Pitch
3.5 on 12
Framing Type
Stick