

Total Heated Area
3,019 sq. ft.
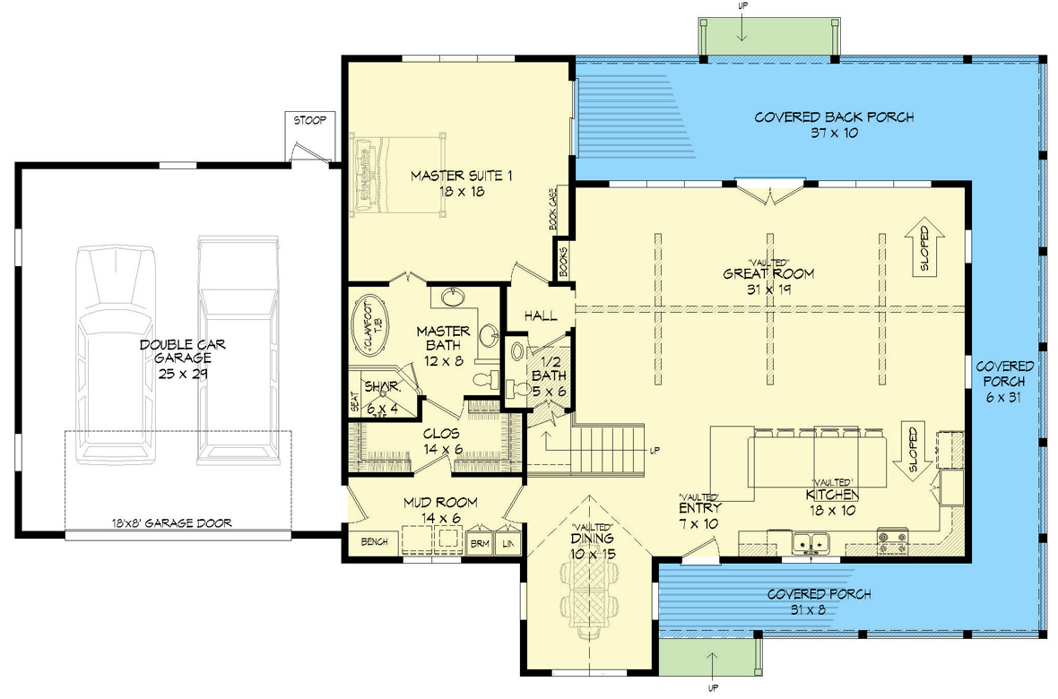
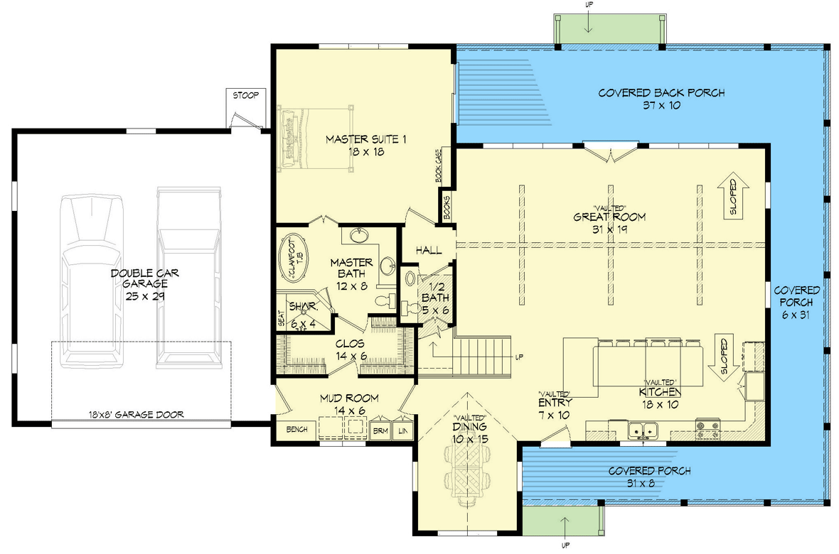
1st Floor
1,816 sq. ft.
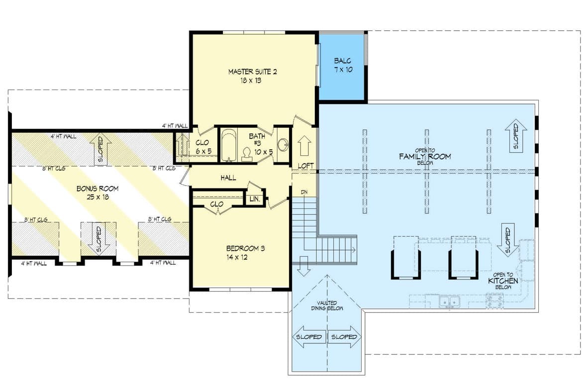
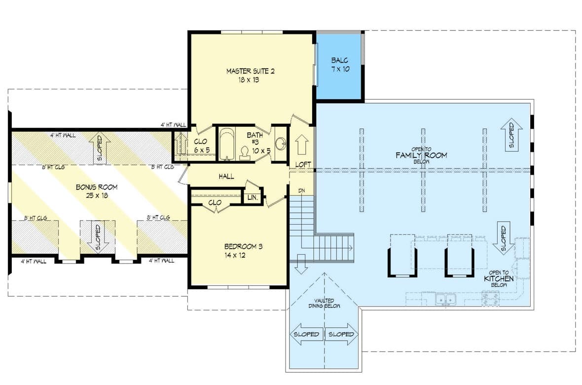
2nd Floor
1,203 sq. ft.
Porch, Combined
744 sq. ft.
Balcony / Veranda
70 sq. ft.
Bedrooms
3
Full bathrooms
2
Half bathrooms
1
Standard Foundations
Crawl, Slab
Exterior Walls
2x6
Width
82' 2"
Depth
49' 6"
Max Ridge Height
26' 8"
Type
Attached
Area
780 sq. ft.
Count
2 Cars
Entry Location
Front
First Floor
9'
Second Floor
8'
Primary Pitch
10 on 12
Secondary Pitch
5 on 12
Framing Type
Stick
Total Heated Area
3,019 sq. ft.
1st Floor
1,816 sq. ft.
2nd Floor
1,203 sq. ft.
Porch, Combined
744 sq. ft.
Balcony / Veranda
70 sq. ft.
Bedrooms
3
Full bathrooms
2
Half bathrooms
1
Standard Foundations
Crawl, Slab
Exterior Walls
2x6
Width
82' 2"
Depth
49' 6"
Max Ridge Height
26' 8"
Type
Attached
Area
780 sq. ft.
Count
2 Cars
Entry Location
Front
First Floor
9'
Second Floor
8'
Primary Pitch
10 on 12
Secondary Pitch
5 on 12
Framing Type
Stick