

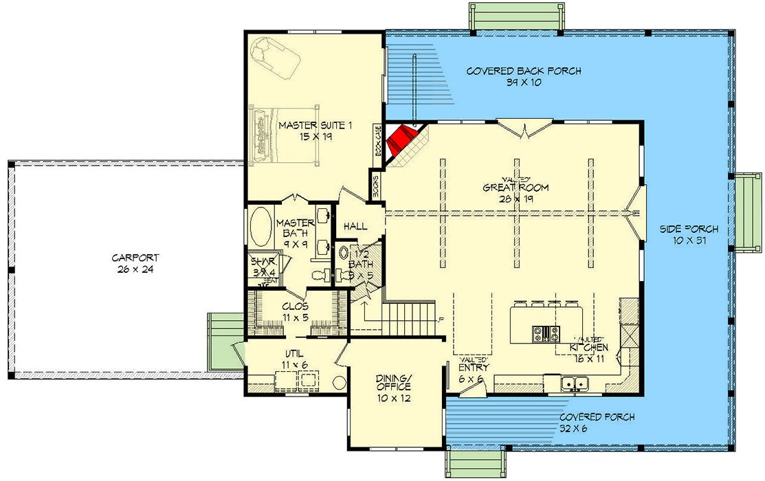
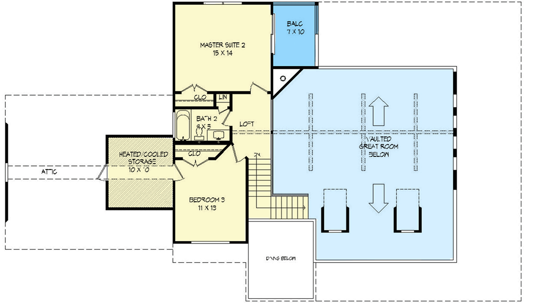
Total Heated Area
2,229 sq. ft.
1st Floor
1,569 sq. ft.
2nd Floor
660 sq. ft.
Carport
625 sq. ft.
Porch, Combined
994 sq. ft.
Bedrooms
3
Full bathrooms
2
Half bathrooms
1
Standard Foundations
Crawl, Slab
Exterior Walls
2x4
Optional Type(s)
2x6
Width
80' 2"
Depth
46' 6"
Max Ridge Height
25' 10"
Type
Carport
Count
2 Cars
Entry Location
Front, Side
First Floor
9'
Second Floor
8'
Primary Pitch
10 on 12
Secondary Pitch
5 on 12
Framing Type
Stick
Total Heated Area
2,229 sq. ft.
1st Floor
1,569 sq. ft.
2nd Floor
660 sq. ft.
Carport
625 sq. ft.
Porch, Combined
994 sq. ft.
Bedrooms
3
Full bathrooms
2
Half bathrooms
1
Standard Foundations
Crawl, Slab
Exterior Walls
2x4
Optional Type(s)
2x6
Width
80' 2"
Depth
46' 6"
Max Ridge Height
25' 10"
Type
Carport
Count
2 Cars
Entry Location
Front, Side
First Floor
9'
Second Floor
8'
Primary Pitch
10 on 12
Secondary Pitch
5 on 12
Framing Type
Stick