LogoLogo TaglineLogo Tagline
Loading...
Plan 68585VR

Mountain Ranch Home Plan with Screened Porch and Deck in Back - 1650 Sq Ft

Heated S.F.
1,650
Beds
2
Baths
2
Stories
1
Cars
2
Client Photos

Floor Plan

Plan 68585VR

Main Level
Main Level
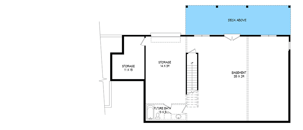
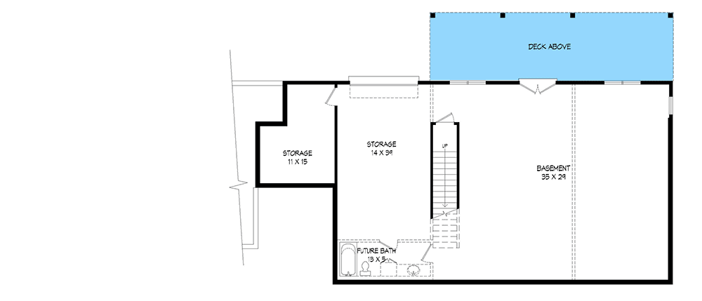
Lower Level
Lower Level

Plan 68585VR

M-F 9am-5pm EST |

1-203-761-8500

Main Level

Plan 68585VR: Mountain Ranch Home Plan with Screened Porch and Deck in Back - 1650 Sq Ft - Floor Plan - Main Level - Country, Craftsman, Mountain, Ranch

Lower Level

Plan 68585VR: Mountain Ranch Home Plan with Screened Porch and Deck in Back - 1650 Sq Ft - Floor Plan - Lower Level - Country, Craftsman, Mountain, Ranch

Plan Details

  • This versatile mountain ranch home plan features a dramatic metal roof, full-length covered porch in front plus a screened and a deck in back, and a 2-car garage.
  • Through the vaulted front entry, discover a spacious vaulted kitchen with ample seating and a versatile great room. French doors in back open to the covered deck.
  • Retreat to your master suite with its own private screened porch, a roomy walk-in closet, and a 5-piece bath.
  • The walk-out basement gives you room to expand.
  • Related Plans: Get a 3-bed version with house plan 68927VR and 68928VR. Get a 3-car front-facing garage with house plans 68748VR and 680120VR. Get an alternate version with an attached garage with house plans 68510VR and 68750VR.
Build Gallery
See and hear from existing customers with real photos, videos, and reviews.
build gallery item - House Plan 68585VR Comes to Life in Virginia

House Plan 68585VR Comes to Life in Virginia

14

Photos

What's Included

  • Floor Plans: House plan drawings indicating dimensions for construction
  • Roof Plan: Drawings indicating roof slopes and unique conditions
  • Exterior Elevations: Drawings showing appearance and the types of materials used for the exterior finish and trim
  • Building Sections: Drawings cut through important locations in the structure
  • Construction Details: Drawings showing specific construction of building elements at a large scale
  • Kitchen and bath elevations (excluded on garage plans)
  • Electrical Plans: Basic electrical layout (suggested locations of fixtures, switches and outlets)
  • Foundation Plan: Dimensioned drawings describing specific foundation conditions for the structure
  • Building license: A single-use license for construction at one location only

View Sample Plan

What's Not Included

  • Architectural or Engineering Stamp - handled locally if required
  • Site Plan - handled locally when required
  • Mechanical Drawings (location of heating and air equipment and duct work) - your subcontractors handle this
  • Plumbing Drawings (drawings showing the actual plumbing pipe sizes and locations) - your subcontractors handle this
  • Energy calculations - handled locally when required

Starting at

Loading...
Price Match Guarantee
What's included?

FORMAT & LICENSE

Choose an option

$0

Not sure what to choose?

Pointer link icon

FOUNDATION

Choose an option

+$0

OPTIONS

Choose Additional Options

+$0

Loading...

Modify this Plan

Receive a free modification quote within 3 business days.

Loading...

Start with a Cost Report

Calculate the cost to build & furnish your home.

Loading...
Loading...

Square Footage Breakdown

Total Heated Area

1,650 sq. ft.

1st Floor

1,650 sq. ft.

Basement Unfinished

1,650 sq. ft.

Porch, Front

500 sq. ft.

Porch, Rear

206 sq. ft.

Screened Porch

150 sq. ft.

Beds/Baths

Bedrooms

2

Full bathrooms

2

Foundation Type

Standard Foundations

Walkout

Exterior Walls

Exterior Walls

2x4

Optional Type(s)

2x6

Dimensions

Width

86' 9"

Depth

50' 0"

Max Ridge Height

20' 5"

Garage

Type

Attached

Area

661 sq. ft.

Count

2 Cars

Entry Location

Front

Ceiling Heights

First Floor

9'

Roof Details

Primary Pitch

8.5 on 12

Framing Type

Stick

Plan Collections

Square Footage Breakdown

Total Heated Area

1,650 sq. ft.

1st Floor

1,650 sq. ft.

Basement Unfinished

1,650 sq. ft.

Porch, Front

500 sq. ft.

Porch, Rear

206 sq. ft.

Screened Porch

150 sq. ft.

Beds/Baths

Bedrooms

2

Full bathrooms

2

Foundation Type

Standard Foundations

Walkout

Exterior Walls

Exterior Walls

2x4

Optional Type(s)

2x6

Dimensions

Width

86' 9"

Depth

50' 0"

Max Ridge Height

20' 5"

Garage

Type

Attached

Area

661 sq. ft.

Count

2 Cars

Entry Location

Front

Ceiling Heights

First Floor

9'

Roof Details

Primary Pitch

8.5 on 12

Framing Type

Stick

Plan Collections

* Please note that all sale prices and promotions featured on our website are subject to change without prior notice. While we strive to provide accurate and up-to-date information, occasional discrepancies may occur due to factors beyond our control. We encourage you to verify all details, including pricing and availability, before making any purchase. Exclusions or restrictions may apply to specific promotions. We reserve the right to modify or cancel any sale at our discretion. Thank you for your understanding and happy shopping!Let's go back to the top.