

Total Heated Area
2,535 sq. ft.
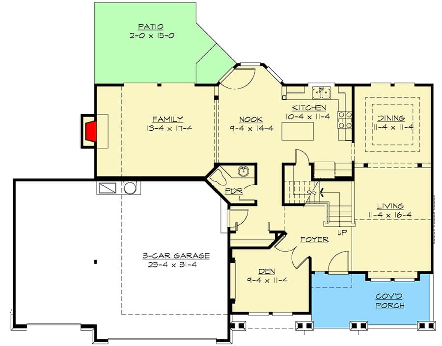
1st Floor
1,230 sq. ft.
2nd Floor
1,305 sq. ft.
Porch, Front
136 sq. ft.
Bedrooms
3
Full bathrooms
2
Half bathrooms
1
Standard Foundations
Crawl
Exterior Walls
2x6
Width
62' 0"
Depth
41' 0"
Max Ridge Height
25' 0"
Type
Attached
Area
730 sq. ft.
Count
3 Cars
Entry Location
Front
First Floor
8'
Second Floor
8'
Primary Pitch
6 on 12
Secondary Pitch
6 on 12
Framing Type
Truss
Total Heated Area
2,535 sq. ft.
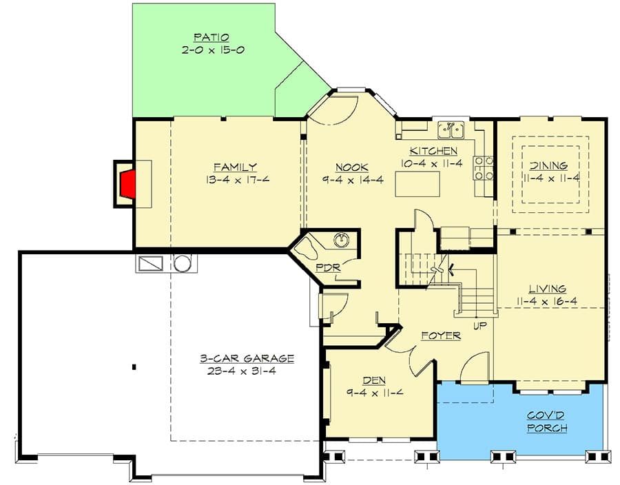
1st Floor
1,230 sq. ft.
2nd Floor
1,305 sq. ft.
Porch, Front
136 sq. ft.
Bedrooms
3
Full bathrooms
2
Half bathrooms
1
Standard Foundations
Crawl
Exterior Walls
2x6
Width
62' 0"
Depth
41' 0"
Max Ridge Height
25' 0"
Type
Attached
Area
730 sq. ft.
Count
3 Cars
Entry Location
Front
First Floor
8'
Second Floor
8'
Primary Pitch
6 on 12
Secondary Pitch
6 on 12
Framing Type
Truss