LogoLogo TaglineLogo Tagline
Loading...
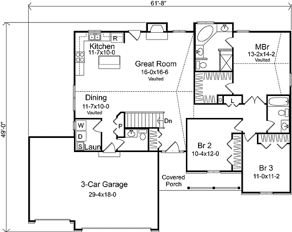
Plan 22007SL

Ranch Living with Twin Dormers

Heated S.F.
1,635
Beds
3
Baths
2.5
Stories
1
Cars
3

Floor Plan

Plan 22007SL

Main Level
Main Level

Plan 22007SL

M-F 9am-5pm EST |

1-203-761-8500

Main Level

Plan 22007SL: Ranch Living with Twin Dormers - Floor Plan - Main Level - Country, Ranch

Plan Details

  • Two dormers on the roof of this spacious ranch home catch your eye and add interest.
  • Inside, the main living area is all open to the kitchen and vaulted ceilings that rise to 11'7' make the space seem even larger.
  • The master bedroom also vaults to 9'11' and has a walk-in closet, two windows and a deluxe bath with two sinks.
  • Two additional bedrooms provide room for family or guests and a three car garage completes the plan.
  • Related Plans: This plan is also available in alternate versions, including 22009SL (one dormer), 22006SL and 2292SL.
  • Need more space? See house plan 2293SL (1,902 sq. ft.) in a reverse layout.

What's Included

  • Foundation plan
  • Fully dimensioned floor plans
  • Exterior elevations
  • Roof plan
  • Electrical plan
  • Cabinet elevations
  • Building section
  • Typical stair and wall sections and other related details

What's Not Included

  • Architectural or Engineering Stamp - handled locally if required
  • Site Plan - handled locally when required
  • Mechanical Drawings (location of heating and air equipment and duct work) - your subcontractors handle this
  • Plumbing Drawings (drawings showing the actual plumbing pipe sizes and locations) - your subcontractors handle this
  • Energy calculations - handled locally when required

Starting at

Loading...
Price Match Guarantee
What's included?

FORMAT & LICENSE

Choose an option

$0

Not sure what to choose?

Pointer link icon

FOUNDATION

Choose an option

+$0

OPTIONS

Choose Additional Options

+$0

Loading...

Modify this Plan

Receive a free modification quote within 3 business days.

Loading...

Start with a Cost Report

Calculate the cost to build & furnish your home.

Loading...
Loading...

Square Footage Breakdown

Total Heated Area

1,635 sq. ft.

1st Floor

1,635 sq. ft.

Beds/Baths

Bedrooms

3

Full bathrooms

2

Half bathrooms

1

Foundation Type

Standard Foundations

Basement

Exterior Walls

Exterior Walls

2x4

Optional Type(s)

2x6

Dimensions

Width

61' 8"

Depth

49' 0"

Max Ridge Height

19' 4"

Garage

Type

Attached

Area

613 sq. ft.

Count

3 Cars

Entry Location

Front

Ceiling Heights

First Floor

8'

Roof Details

Primary Pitch

6 on 12

Secondary Pitch

10 on 12

Framing Type

Truss

Architectural Style

Country

Square Footage Breakdown

Total Heated Area

1,635 sq. ft.

1st Floor

1,635 sq. ft.

Beds/Baths

Bedrooms

3

Full bathrooms

2

Half bathrooms

1

Foundation Type

Standard Foundations

Basement

Exterior Walls

Exterior Walls

2x4

Optional Type(s)

2x6

Dimensions

Width

61' 8"

Depth

49' 0"

Max Ridge Height

19' 4"

Garage

Type

Attached

Area

613 sq. ft.

Count

3 Cars

Entry Location

Front

Ceiling Heights

First Floor

8'

Roof Details

Primary Pitch

6 on 12

Secondary Pitch

10 on 12

Framing Type

Truss

Architectural Style

* Please note that all sale prices and promotions featured on our website are subject to change without prior notice. While we strive to provide accurate and up-to-date information, occasional discrepancies may occur due to factors beyond our control. We encourage you to verify all details, including pricing and availability, before making any purchase. Exclusions or restrictions may apply to specific promotions. We reserve the right to modify or cancel any sale at our discretion. Thank you for your understanding and happy shopping!Let's go back to the top.