Exclusive


Total Heated Area
3,244 sq. ft.
1st Floor
2,275 sq. ft.
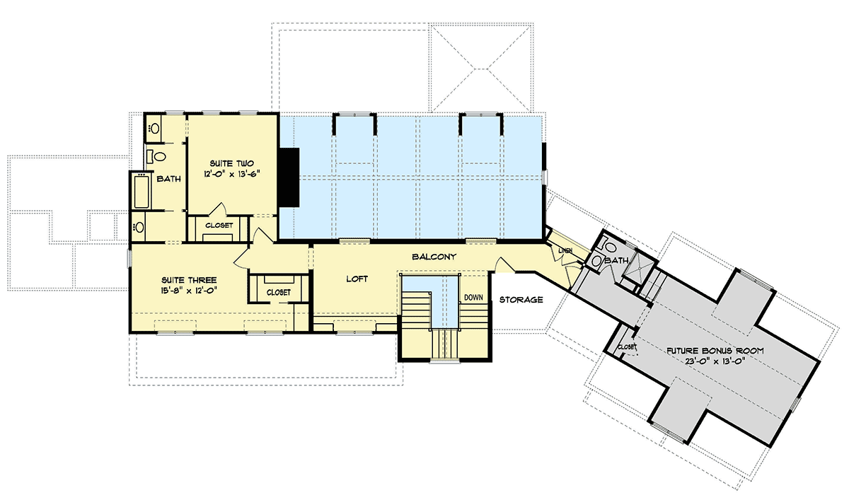
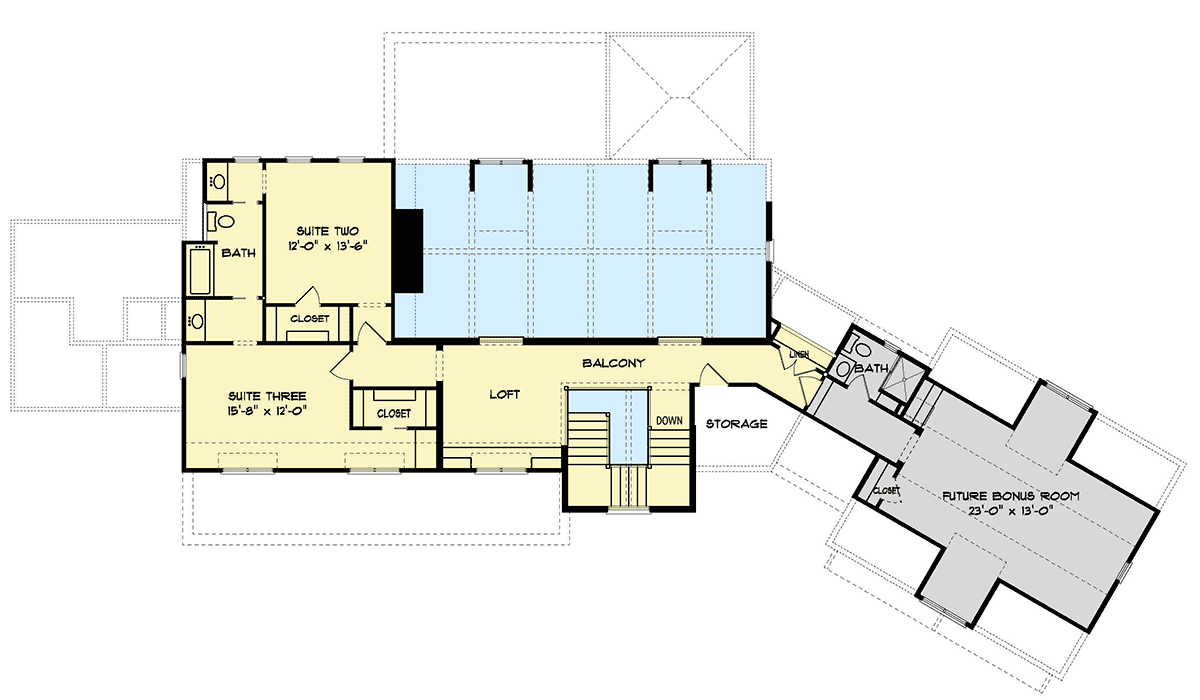
2nd Floor
949 sq. ft.
Bonus
492 sq. ft.
Porch, Front
291 sq. ft.
Balcony / Veranda
258 sq. ft.
Bedrooms
3 or 4
Full bathrooms
3 or 4
Standard Foundations
Crawl
Exterior Walls
2x4
Width
113' 9"
Depth
62' 4"
Type
Attached
Area
628 sq. ft.
Count
2 Cars
Entry Location
Courtyard
First Floor
10'
Total Heated Area
3,244 sq. ft.
1st Floor
2,275 sq. ft.
2nd Floor
949 sq. ft.
Bonus
492 sq. ft.
Porch, Front
291 sq. ft.
Balcony / Veranda
258 sq. ft.
Bedrooms
3 or 4
Full bathrooms
3 or 4
Standard Foundations
Crawl
Exterior Walls
2x4
Width
113' 9"
Depth
62' 4"
Type
Attached
Area
628 sq. ft.
Count
2 Cars
Entry Location
Courtyard
First Floor
10'