



Total Heated Area
924 sq. ft.
1st Floor
630 sq. ft.
2nd Floor
294 sq. ft.
Porch, Front
128 sq. ft.
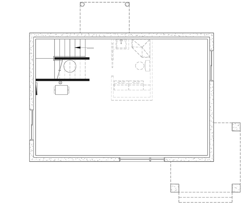
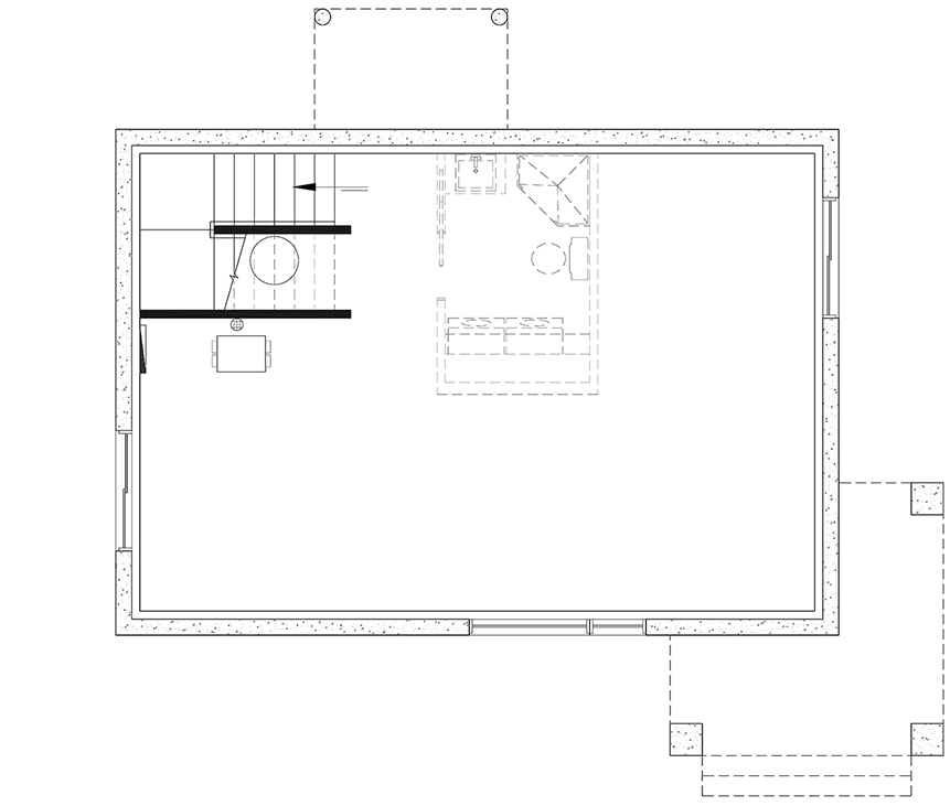
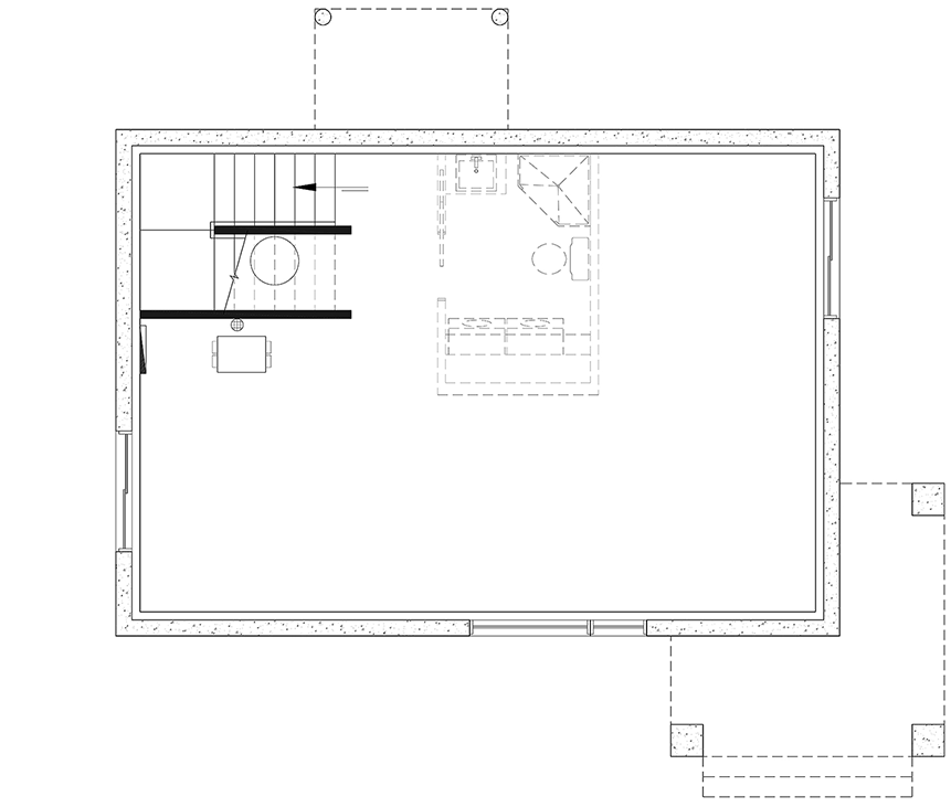
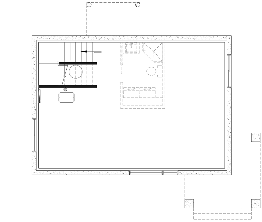
Basement Unfinished
630 sq. ft.
Bedrooms
2
Full bathrooms
2
Standard Foundations
Slab
Exterior Walls
2x6
Width
30' 0"
Depth
21' 0"
Max Ridge Height
20' 11"
First Floor
8'
Second Floor
8'
Framing Type
Truss
Total Heated Area
924 sq. ft.
1st Floor
630 sq. ft.
2nd Floor
294 sq. ft.
Porch, Front
128 sq. ft.
Basement Unfinished
630 sq. ft.
Bedrooms
2
Full bathrooms
2
Standard Foundations
Slab
Exterior Walls
2x6
Width
30' 0"
Depth
21' 0"
Max Ridge Height
20' 11"
First Floor
8'
Second Floor
8'
Framing Type
Truss