

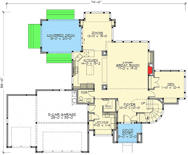
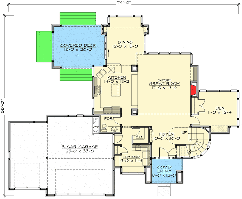
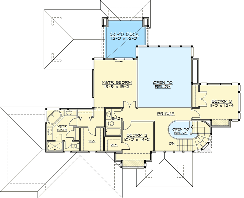
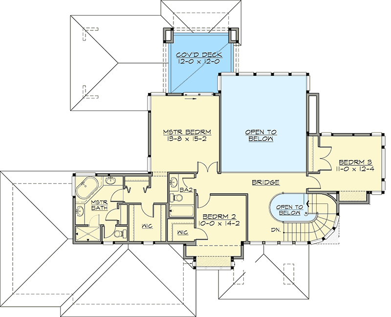
Total Heated Area
2,551 sq. ft.
1st Floor
1,467 sq. ft.
2nd Floor
1,084 sq. ft.
Deck
360 sq. ft.
Entry
96 sq. ft.
Balcony / Veranda
144 sq. ft.
Bedrooms
3
Full bathrooms
2
Half bathrooms
1
Standard Foundations
Crawl
Exterior Walls
2x6
Width
74' 0"
Depth
58' 0"
Max Ridge Height
25' 0"
Type
Attached
Area
805 sq. ft.
Count
3 Cars
Entry Location
Front
First Floor
10'
Second Floor
9'
Room
Ceiling Type
Height
Great Room
Second Story
0' 0''
Primary Pitch
4 on 12
Framing Type
Truss
Total Heated Area
2,551 sq. ft.
1st Floor
1,467 sq. ft.
2nd Floor
1,084 sq. ft.
Deck
360 sq. ft.
Entry
96 sq. ft.
Balcony / Veranda
144 sq. ft.
Bedrooms
3
Full bathrooms
2
Half bathrooms
1
Standard Foundations
Crawl
Exterior Walls
2x6
Width
74' 0"
Depth
58' 0"
Max Ridge Height
25' 0"
Type
Attached
Area
805 sq. ft.
Count
3 Cars
Entry Location
Front
First Floor
10'
Second Floor
9'
Room
Ceiling Type
Height
Great Room
Second Story
0' 0''
Primary Pitch
4 on 12
Framing Type
Truss