
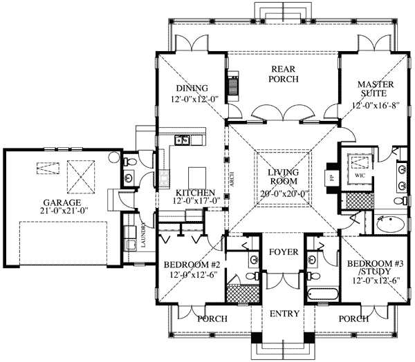
Total Heated Area
1,997 sq. ft.
1st Floor
1,997 sq. ft.
Bedrooms
2 or 3
Full bathrooms
3
Half bathrooms
1
Standard Foundations
Piling
Exterior Walls
2x6
Width
74' 8"
Depth
59' 8"
Max Ridge Height
22' 8"
Type
Attached
Area
484 sq. ft.
Count
2 Cars
Entry Location
Front
First Floor
8'
Primary Pitch
4 on 12
Framing Type
Stick
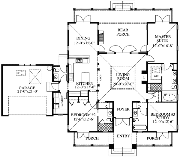
Total Heated Area
1,997 sq. ft.
1st Floor
1,997 sq. ft.
Bedrooms
2 or 3
Full bathrooms
3
Half bathrooms
1
Standard Foundations
Piling
Exterior Walls
2x6
Width
74' 8"
Depth
59' 8"
Max Ridge Height
22' 8"
Type
Attached
Area
484 sq. ft.
Count
2 Cars
Entry Location
Front
First Floor
8'
Primary Pitch
4 on 12
Framing Type
Stick