LogoLogo TaglineLogo Tagline
Loading...
Plan 35221GH

King of the Hill

Heated S.F.
3,304
Beds
2
Baths
3
Stories
1
Cars
2

Floor Plan

Plan 35221GH

Main Level
Main Level
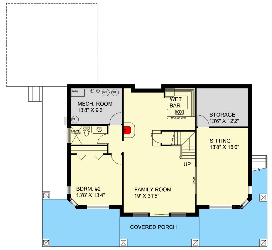
Lower Level
Lower Level

Plan 35221GH

M-F 9am-5pm EST |

1-203-761-8500

Main Level

Plan 35221GH: King of the Hill - Floor Plan - Main Level - Mountain, Rustic, Vacation

Lower Level

Plan 35221GH: King of the Hill - Floor Plan - Lower Level - Mountain, Rustic, Vacation

Plan Details

  • Feel like the king of the hill in your own mountain lodge with two story windows geared to take advantage of your views.
  • On the main level, lots of open decks provide space to sit and enjoy the views and the sun.
  • The focal point of the great room is the warm fireplace where you can relax and enjoy the views from the two-story windows.
  • Windows surround the dining room with light and close proximity to the kitchen makes serving a breeze.
  • Two walk-in closets and a spa bath pamper the owners who also have their own access to the deck.
  • On the lower level, a family room with sitting area and wet bar will be your favorite place to hang out. Another bedroom and bath provides room for family or guests.
  • The vaulted area has a 11:12 roof pitch. The kitchen and master suite have a 7:12 roof pitch.
  • Related Plans: Flip the master suite and get a side-entry garage with house plan 35042GH. Get a second floor loft with house plan 35141GH. Build with 2x6 and get a larger finished upper level with house plan 35244GH. Get an RV garage with house plan 35398GH.

What's Included

  • Exterior Elevations:  The exterior elevations provide exterior views of the house and call out the exterior finish materials, such as siding, stucco, brick, stone, etc. This page also shows roof pitches and materials, and decorative elements, such as columns and window shutters. Sometimes window and door sizes are also shown here.
  • Floor Plans:  The floor plan shows how each room is laid out on each floor of the house. In most cases, the floor plan will include wall sizes, room dimensions, notes about ceiling design, window and door locations and sizes, and other structural layout notes and details.
  • Foundation Plan: This page provides a detailed foundation drawing, including the thickness of the foundation walls, how the foundation is built, footing and wall placement, Rebar schedule, as well as other construction notes and details. This page may also include a floor framing plan.
  • Cross Sections: Cross sections are views from the top to the bottom of the house plan showing structural details related to the construction of the home. They will show the composition of the foundation, interior and exterior walls, roof, floor and stair details. They also show rooflines, ceiling heights, and the relationships between floors. Cross sections may be on a separate page or on various pages throughout the home plan.
  • Basic Electric: This page shows the locations of outlets, switches, and fixtures. It may be on a separate page, or located on the floor plan page.
  • Simple Plumbing: This page shows the locations of the bathtubs, showers, toilets, and sinks. This may be found on the floor plan, or it might be on a separate page.
  • Details: This page includes the structural details for the construction of the house.

What's Not Included

  • Architectural or Engineering Stamp - handled locally if required
  • Site Plan - handled locally when required
  • Mechanical Drawings (location of heating and air equipment and duct work) - your subcontractors handle this
  • Plumbing Drawings (drawings showing the actual plumbing pipe sizes and locations) - your subcontractors handle this
  • Energy calculations - handled locally when required
Starting at
Loading...
What's included?
Plan Set
Select...

Foundation
Select...

Options
Optional Add-Ons
+$0

Loading...
Price Match Guarantee
Cost to Build Report
Still deciding? Calculate the cost to build this house in your area.
Loading...
Customize This Plan
Need to make changes? We will get you a free price quote within 1 to 3 business days.
Cost to Furnish Report
Instant room-by-room estimates for your entire furniture & home decor plan, matched to your budget.
Loading...

Square Footage Breakdown

Total Heated Area

3,304 sq. ft.

Lower Level

1,652 sq. ft.

1st Floor

1,652 sq. ft.

Screened Porch

398 sq. ft.

Beds/Baths

Bedrooms

2

Full bathrooms

3

Foundation Type

Standard Foundations

Daylight, Walkout

Exterior Walls

Exterior Walls

ICF

Dimensions

Width

65' 0"

Depth

56' 6"

Max Ridge Height

22' 3"

Garage

Type

Attached

Area

524 sq. ft.

Count

2 Cars

Entry Location

Front

Ceiling Heights

Lower Level

9'

First Floor

9'

Roof Details

Primary Pitch

7 on 12

Secondary Pitch

N on N

Framing Type

Truss

Architectural Style

Mountain

Plan Collections

Square Footage Breakdown

Total Heated Area

3,304 sq. ft.

Lower Level

1,652 sq. ft.

1st Floor

1,652 sq. ft.

Screened Porch

398 sq. ft.

Beds/Baths

Bedrooms

2

Full bathrooms

3

Foundation Type

Standard Foundations

Daylight, Walkout

Exterior Walls

Exterior Walls

ICF

Dimensions

Width

65' 0"

Depth

56' 6"

Max Ridge Height

22' 3"

Garage

Type

Attached

Area

524 sq. ft.

Count

2 Cars

Entry Location

Front

Ceiling Heights

Lower Level

9'

First Floor

9'

Roof Details

Primary Pitch

7 on 12

Secondary Pitch

N on N

Framing Type

Truss

Architectural Style

Plan Collections

* Please note that all sale prices and promotions featured on our website are subject to change without prior notice. While we strive to provide accurate and up-to-date information, occasional discrepancies may occur due to factors beyond our control. We encourage you to verify all details, including pricing and availability, before making any purchase. Exclusions or restrictions may apply to specific promotions. We reserve the right to modify or cancel any sale at our discretion. Thank you for your understanding and happy shopping!Let's go back to the top.