


Total Heated Area
2,025 sq. ft.
1st Floor
1,367 sq. ft.
2nd Floor
419 sq. ft.
3rd Floor
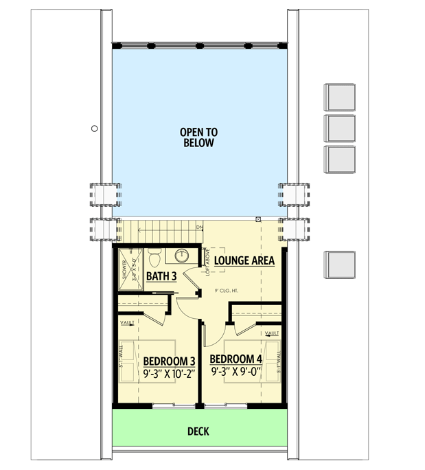
239 sq. ft.
Porch, Front
190 sq. ft.
Deck
532 sq. ft.
Deck & Porch
722 sq. ft.
Bedrooms
4
Full bathrooms
3
Standard Foundations
Crawl
Exterior Walls
2x6
Width
38' 0"
Depth
61' 0"
Max Ridge Height
34' 11"
Lower Level
9'
First Floor
9'
Room
Ceiling Type
Height
Loft
Vaulted
0' 0''
Primary Pitch
20 on 12
Framing Type
Stick
Total Heated Area
2,025 sq. ft.
1st Floor
1,367 sq. ft.
2nd Floor
419 sq. ft.
3rd Floor
239 sq. ft.
Porch, Front
190 sq. ft.
Deck
532 sq. ft.
Deck & Porch
722 sq. ft.
Bedrooms
4
Full bathrooms
3
Standard Foundations
Crawl
Exterior Walls
2x6
Width
38' 0"
Depth
61' 0"
Max Ridge Height
34' 11"
Lower Level
9'
First Floor
9'
Room
Ceiling Type
Height
Loft
Vaulted
0' 0''
Primary Pitch
20 on 12
Framing Type
Stick