

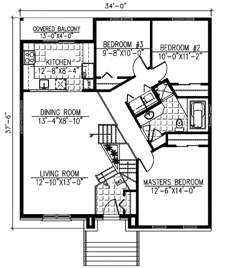
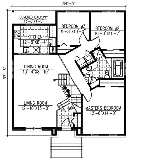
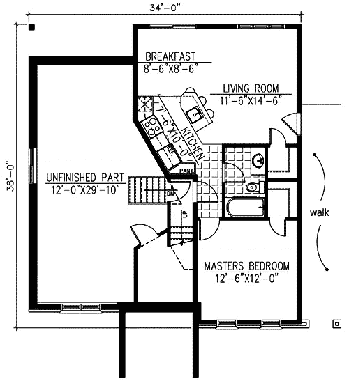
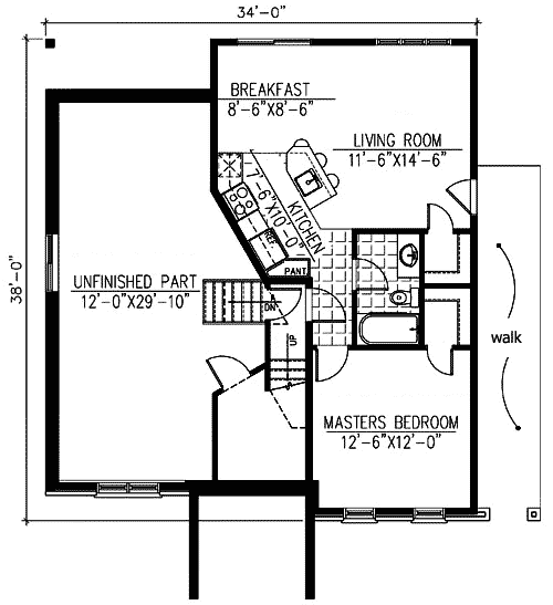
Total Heated Area
1,788 sq. ft.
Lower Level
615 sq. ft.
1st Floor
1,173 sq. ft.
Basement Unfinished
350 sq. ft.
Bedrooms
4
Full bathrooms
2
Standard Foundations
Basement, Walkout
Exterior Walls
2x6
Width
44' 0"
Depth
34' 0"
Max Ridge Height
27' 1"
Lower Level
8'
First Floor
8'
Primary Pitch
10 on 12
Framing Type
Truss
Total Heated Area
1,788 sq. ft.
Lower Level
615 sq. ft.
1st Floor
1,173 sq. ft.
Basement Unfinished
350 sq. ft.
Bedrooms
4
Full bathrooms
2
Standard Foundations
Basement, Walkout
Exterior Walls
2x6
Width
44' 0"
Depth
34' 0"
Max Ridge Height
27' 1"
Lower Level
8'
First Floor
8'
Primary Pitch
10 on 12
Framing Type
Truss