LogoLogo TaglineLogo Tagline
Loading...
Plan 68648VR

3-Car Garage Apartment with 2 Drive-through Bays

Heated S.F.
1,265
Beds
1
Baths
1
Stories
2
Cars
2

Floor Plan

Plan 68648VR

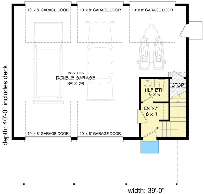
Ground Level
Ground Level
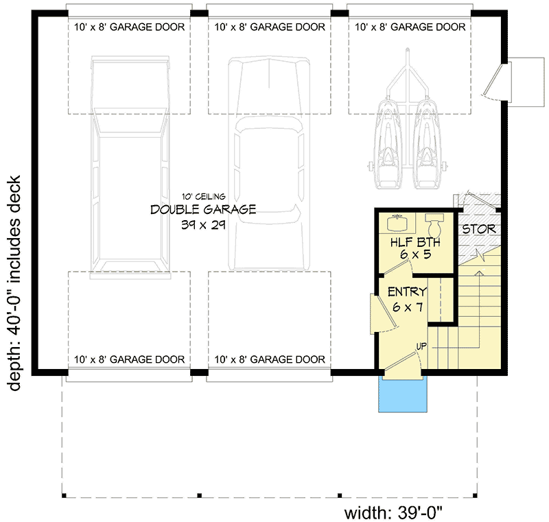
2nd Floor
2nd Floor

Plan 68648VR

M-F 9am-5pm EST |

1-203-761-8500

Ground Level

Plan 68648VR: 3-Car Garage Apartment with 2 Drive-through Bays - Floor Plan - Ground Level - Carriage, Coastal, Mountain, Vacation

2nd Floor

Plan 68648VR: 3-Car Garage Apartment with 2 Drive-through Bays - Floor Plan - 2nd Floor - Carriage, Coastal, Mountain, Vacation

Plan Details

  • This modern house plan is great for a mountain or water view lots or as an outbuilding to your neighborhood home. 
  • A sun deck extends over the front. In back, three single garage doors open to give you room for three vehicles. 
  • Upstairs, the living area is brightly lit from the wall of windows and has soaring ceilings. 
  • The deck is accessed through a set of French doors. The bedroom and bath are in back for your privacy.
  • Related Plans: Get a smaller version with house plans 68632VR (1,200 sq. ft.), 68605VR (831 sq. ft.), 68461VR (820 sq. ft.) and 68640VR (650 sq. ft.). Move the garage opening to the front with plan 68541VR and to the side with 68633VR (1,359 sq. ft.). Get more room with house plans 68627VR (1,309 sq. ft.) and 68745VR (1,957 sq. ft.).

What's Included

  • Floor Plans: House plan drawings indicating dimensions for construction
  • Roof Plan: Drawings indicating roof slopes and unique conditions
  • Exterior Elevations: Drawings showing appearance and the types of materials used for the exterior finish and trim
  • Building Sections: Drawings cut through important locations in the structure
  • Construction Details: Drawings showing specific construction of building elements at a large scale
  • Kitchen and bath elevations (excluded on garage plans)
  • Electrical Plans: Basic electrical layout (suggested locations of fixtures, switches and outlets)
  • Foundation Plan: Dimensioned drawings describing specific foundation conditions for the structure
  • Building license: A single-use license for construction at one location only

View Sample Plan

What's Not Included

  • Architectural or Engineering Stamp - handled locally if required
  • Site Plan - handled locally when required
  • Mechanical Drawings (location of heating and air equipment and duct work) - your subcontractors handle this
  • Plumbing Drawings (drawings showing the actual plumbing pipe sizes and locations) - your subcontractors handle this
  • Energy calculations - handled locally when required

Starting at

Loading...
Price Match Guarantee
What's included?

FORMAT & LICENSE

Choose an option

$0

Not sure what to choose?

Pointer link icon

FOUNDATION

Choose an option

+$0

OPTIONS

Choose Additional Options

+$0

Loading...

Modify this Plan

Receive a free modification quote within 3 business days.

Loading...

Start with a Cost Report

Calculate the cost to build & furnish your home.

Loading...
Loading...

Square Footage Breakdown

Total Heated Area

1,265 sq. ft.

1st Floor

95 sq. ft.

2nd Floor

1,170 sq. ft.

Balcony / Veranda

340 sq. ft.

Beds/Baths

Bedrooms

1

Full bathrooms

1

Foundation Type

Standard Foundations

Slab

Exterior Walls

Exterior Walls

2x6

Dimensions

Width

39' 0"

Depth

40' 0"

Max Ridge Height

26' 4"

Garage

Area

1075 sq. ft.

Count

2 Cars

Entry Location

Front, Rear

Ceiling Heights

First Floor

10'

Roof Details

Primary Pitch

2.5 on 12

Framing Type

Stick

Architectural Style

Carriage

Square Footage Breakdown

Total Heated Area

1,265 sq. ft.

1st Floor

95 sq. ft.

2nd Floor

1,170 sq. ft.

Balcony / Veranda

340 sq. ft.

Beds/Baths

Bedrooms

1

Full bathrooms

1

Foundation Type

Standard Foundations

Slab

Exterior Walls

Exterior Walls

2x6

Dimensions

Width

39' 0"

Depth

40' 0"

Max Ridge Height

26' 4"

Garage

Area

1075 sq. ft.

Count

2 Cars

Entry Location

Front, Rear

Ceiling Heights

First Floor

10'

Roof Details

Primary Pitch

2.5 on 12

Framing Type

Stick

* Please note that all sale prices and promotions featured on our website are subject to change without prior notice. While we strive to provide accurate and up-to-date information, occasional discrepancies may occur due to factors beyond our control. We encourage you to verify all details, including pricing and availability, before making any purchase. Exclusions or restrictions may apply to specific promotions. We reserve the right to modify or cancel any sale at our discretion. Thank you for your understanding and happy shopping!Let's go back to the top.