LogoLogo TaglineLogo Tagline
Loading...
Plan 22549DR

One-Bed Contemporary Ranch Home Plan

Heated S.F.
797
Beds
1
Baths
1
Stories
1
Cars
1
Client Photos

Floor Plan

Plan 22549DR

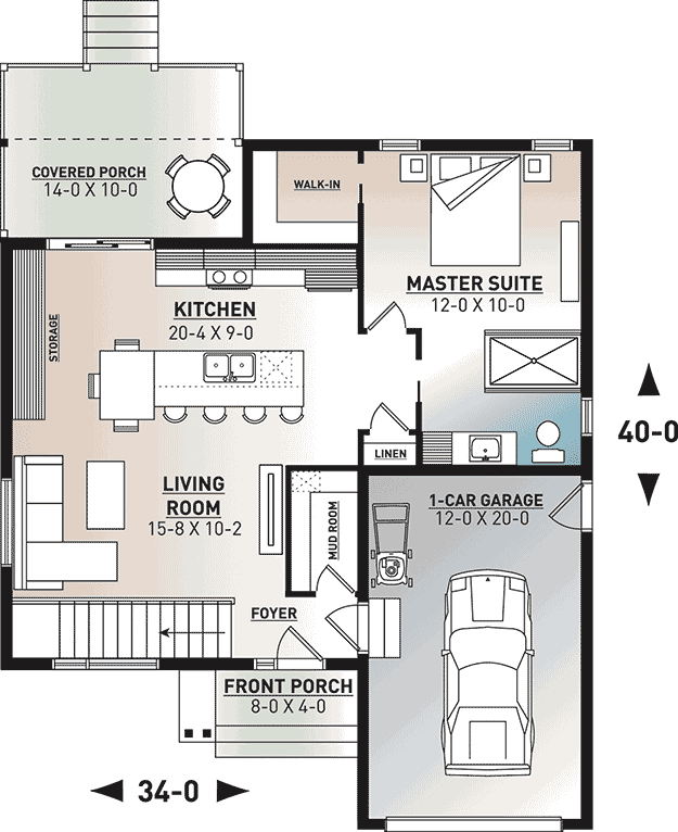
Main Level
Main Level
Basement Unfinished
Basement Unfinished

Plan 22549DR

M-F 9am-5pm EST |

1-203-761-8500

Main Level

Plan 22549DR: One-Bed Contemporary Ranch Home Plan - Floor Plan - Main Level - Contemporary, Northwest, Ranch

Basement Unfinished

Plan 22549DR: One-Bed Contemporary Ranch Home Plan - Floor Plan - Basement Unfinished - Contemporary, Northwest, Ranch

Plan Details

  • This one-bed contemporary ranch home plan has a small footprint making it ideal higher density developments. A sleek contemporary roofline (truss framed) and a facade of clapboard and stone results in a contemporary yet timeless look. Inside, an open floor plan greets you as you step in from the foyer.
  • This house plan offers lots of amenities such as the mudroom which helps control clutter. and the large island with integrated dining table in the kitchen.
  • A large closet in the bedroom is a welcome feature in a home this size.
  • A covered porch is accessed through sliding doors in the kitchen.
  • Related Plans: Get larger versions with house plans 22334DR(1,225 sq. ft.), 22333DR (1,283 sq. ft.), 22383DR (1,339 sq. ft.) and 22384DR (1,342 sq. ft.).
Build Gallery
See and hear from existing customers with real photos, videos, and reviews.
build gallery item - House Plan 22549DR Comes to Life in Ontario

House Plan 22549DR Comes to Life in Ontario

10

Photos

What's Included

  • Elevations
  • Foundation Plan
  • Main Floor Plan
  • Upper Floor Plans (if applicable)
  • Roof Plan
  • Building Section
  • Construction Details
  • Typical Wall Section
View Sample Plan

What's Not Included

  • Architectural or Engineering Stamp - handled locally if required
  • Site Plan - handled locally when required
  • Mechanical and Electrical Drawings (location of heating and air equipment and duct work) - your subcontractors handle this
  • Plumbing Drawings (drawings showing the actual plumbing pipe sizes and locations) - your subcontractors handle this
  • Energy calculations - handled locally when required 

Starting at

Loading...
Price Match Guarantee
What's included?

FORMAT & LICENSE

Choose an option

$0

Not sure what to choose?

Pointer link icon

FOUNDATION

Choose an option

+$0

OPTIONS

Choose Additional Options

+$0

Loading...

Modify this Plan

Receive a free modification quote within 3 business days.

Loading...

Start with a Cost Report

Calculate the cost to build & furnish your home.

Loading...
Loading...

Square Footage Breakdown

Total Heated Area

797 sq. ft.

1st Floor

797 sq. ft.

Porch, Combined

48 sq. ft.

Beds/Baths

Bedrooms

1

Full bathrooms

1

Foundation Type

Standard Foundations

Basement

Exterior Walls

Exterior Walls

2x6

Dimensions

Width

34' 0"

Depth

40' 0"

Max Ridge Height

16' 10"

Garage

Type

Attached

Area

276 sq. ft.

Count

1 Cars

Entry Location

Front

Ceiling Heights

First Floor

8'

Roof Details

Primary Pitch

3 on 12

Square Footage Breakdown

Total Heated Area

797 sq. ft.

1st Floor

797 sq. ft.

Porch, Combined

48 sq. ft.

Beds/Baths

Bedrooms

1

Full bathrooms

1

Foundation Type

Standard Foundations

Basement

Exterior Walls

Exterior Walls

2x6

Dimensions

Width

34' 0"

Depth

40' 0"

Max Ridge Height

16' 10"

Garage

Type

Attached

Area

276 sq. ft.

Count

1 Cars

Entry Location

Front

Ceiling Heights

First Floor

8'

Roof Details

Primary Pitch

3 on 12

Architectural Style

* Please note that all sale prices and promotions featured on our website are subject to change without prior notice. While we strive to provide accurate and up-to-date information, occasional discrepancies may occur due to factors beyond our control. We encourage you to verify all details, including pricing and availability, before making any purchase. Exclusions or restrictions may apply to specific promotions. We reserve the right to modify or cancel any sale at our discretion. Thank you for your understanding and happy shopping!Let's go back to the top.