


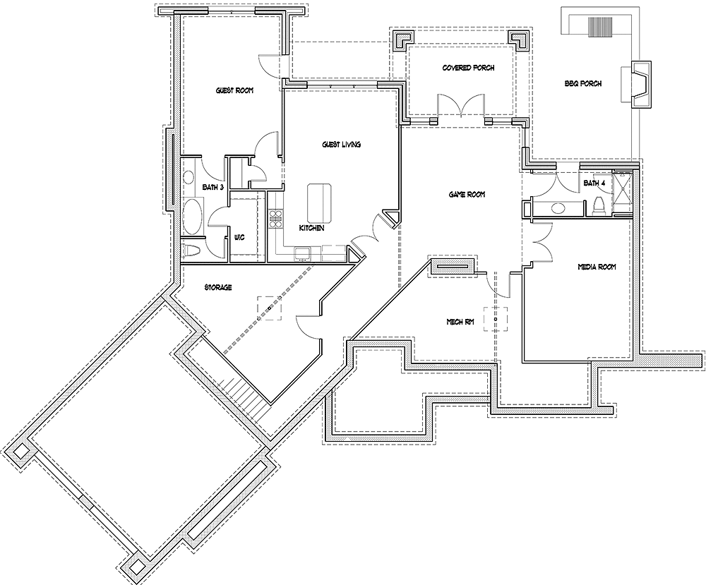
Total Heated Area
2,106 sq. ft.
1st Floor
2,106 sq. ft.
Bonus
395 sq. ft.
Porch, Combined
418 sq. ft.
Bedrooms
3
Full bathrooms
2
Half bathrooms
1
Standard Foundations
Slab
Exterior Walls
2x4
Optional Type(s)
2x6
Width
81' 2"
Depth
73' 10"
Max Ridge Height
29' 3"
Type
Attached
Area
583 sq. ft.
Count
2 Cars
Entry Location
Side
First Floor
10'
Second Floor
9'
Room
Ceiling Type
Height
Foyer
Tray
0' 0''
Family Room
Tray
0' 0''
Master Bedroom
Vaulted
0' 0''
Bedroom 2
Vaulted
0' 0''
Primary Pitch
12 on 12
Secondary Pitch
4 on 12
Framing Type
Stick
Total Heated Area
2,106 sq. ft.
1st Floor
2,106 sq. ft.
Bonus
395 sq. ft.
Porch, Combined
418 sq. ft.
Bedrooms
3
Full bathrooms
2
Half bathrooms
1
Standard Foundations
Slab
Exterior Walls
2x4
Optional Type(s)
2x6
Width
81' 2"
Depth
73' 10"
Max Ridge Height
29' 3"
Type
Attached
Area
583 sq. ft.
Count
2 Cars
Entry Location
Side
First Floor
10'
Second Floor
9'
Room
Ceiling Type
Height
Foyer
Tray
0' 0''
Family Room
Tray
0' 0''
Master Bedroom
Vaulted
0' 0''
Bedroom 2
Vaulted
0' 0''
Primary Pitch
12 on 12
Secondary Pitch
4 on 12
Framing Type
Stick