LogoLogo TaglineLogo Tagline
Loading...
Plan 68966VR

Expanded 2-Story Mountain House Plan with Main Floor Master Suite

Heated S.F.
1,952
Beds
3 - 4
Baths
2.5 - 3.5
Stories
2

Floor Plan

Plan 68966VR

Main Level
Main Level
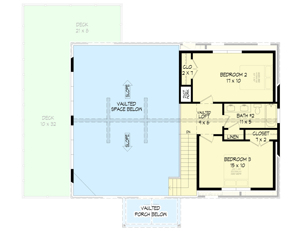
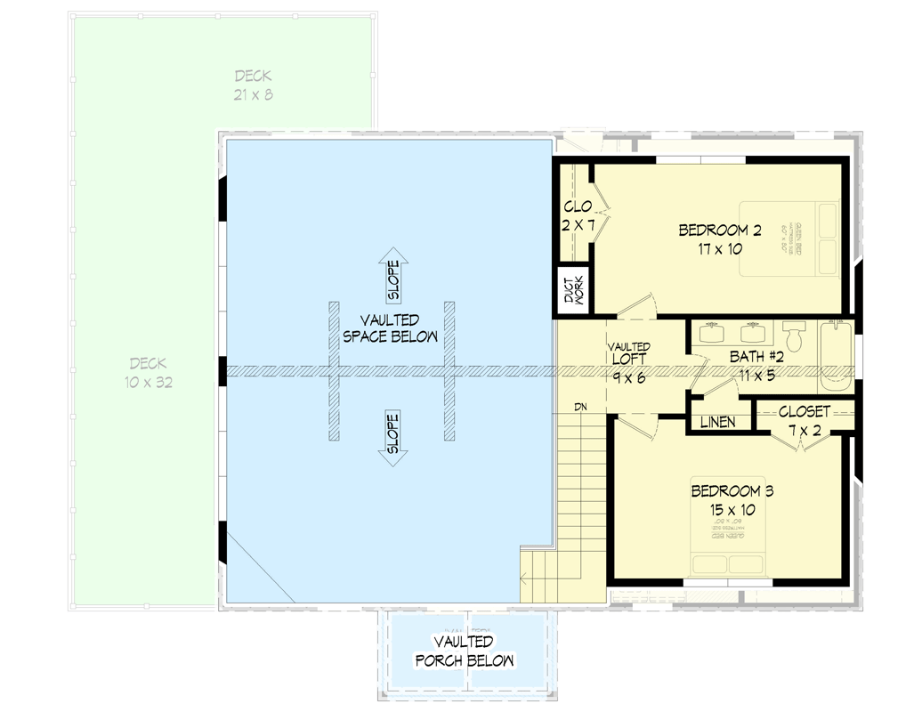
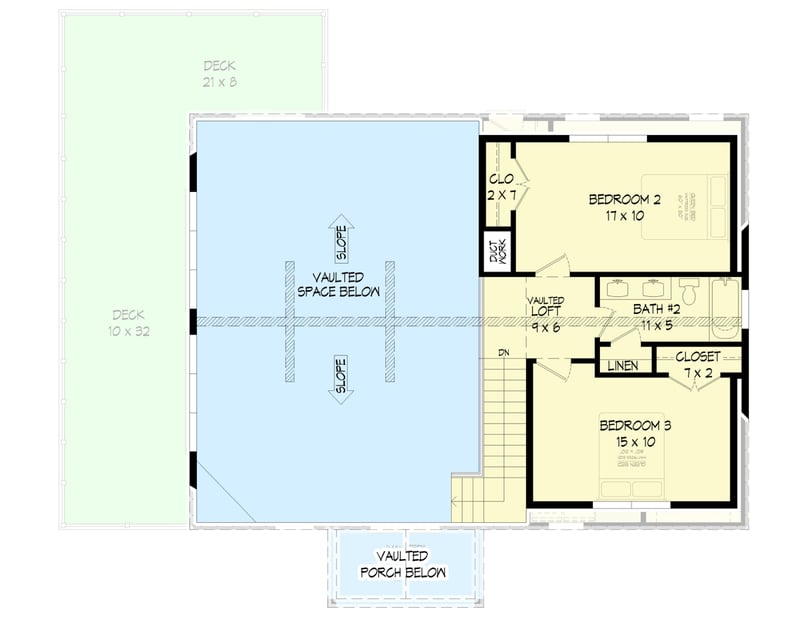
2nd Floor
2nd Floor
Optionally Finished Lower Level
Optionally Finished Lower Level

Plan 68966VR

M-F 9am-5pm EST |

1-203-761-8500

Main Level

Plan 68966VR: Expanded 2-Story Mountain House Plan with Main Floor Master Suite - Floor Plan - Main Level - Country, Mountain, Rustic, Vacation

2nd Floor

Plan 68966VR: Expanded 2-Story Mountain House Plan with Main Floor Master Suite - Floor Plan - 2nd Floor - Country, Mountain, Rustic, Vacation

Optionally Finished Lower Level

Plan 68966VR: Expanded 2-Story Mountain House Plan with Main Floor Master Suite - Floor Plan - Optionally Finished Lower Level - Country, Mountain, Rustic, Vacation

Plan Details

  • A timber-frame truss lends character to the front porch of this two-story, mountain house plan, complete with a wrap-around porch to enjoy the available views.
  • The sun-drenched interior features a two-story great room with a vaulted ceiling and floor to ceiling windows. The adjoining eat-in kitchen includes a multi-purpose island and easy access to the deck for grilling.
  • The master bedroom is located on the main floor and has a 4-fixture bathroom and a walk-in closet as well as convenient access to the laundry.
  • A loft at the top of the stairs overlooks the great room below and two bedrooms share a bath.
  • Expansion opportunities in the lower level include a fourth bedroom and an open family room plus a bonus room. Mechanicals and storage complete the home.
  • Related Plan: Get a smaller version with house plan 69747VR (1,770 sq. ft.) and a slightly larger one with house plan 680066VR (2,090 sq. ft.). Extend the roof and get a covered deck with house plan 68856VR. Wrap the deck from the front to the back with house plan 68901VR. Get a smaller version with house plan 68816VR. Put the master on the second floor and the other bedrooms on the main floor with house plan 68622VR as well as with house plans 68623VR and 68798VR, both with parking in the lower level.

What's Included

  • Floor Plans: House plan drawings indicating dimensions for construction
  • Roof Plan: Drawings indicating roof slopes and unique conditions
  • Exterior Elevations: Drawings showing appearance and the types of materials used for the exterior finish and trim
  • Building Sections: Drawings cut through important locations in the structure
  • Construction Details: Drawings showing specific construction of building elements at a large scale
  • Kitchen and bath elevations (excluded on garage plans)
  • Electrical Plans: Basic electrical layout (suggested locations of fixtures, switches and outlets)
  • Foundation Plan: Dimensioned drawings describing specific foundation conditions for the structure
  • Building license: A single-use license for construction at one location only

View Sample Plan

What's Not Included

  • Architectural or Engineering Stamp - handled locally if required
  • Site Plan - handled locally when required
  • Mechanical Drawings (location of heating and air equipment and duct work) - your subcontractors handle this
  • Plumbing Drawings (drawings showing the actual plumbing pipe sizes and locations) - your subcontractors handle this
  • Energy calculations - handled locally when required

Starting at

Loading...
Price Match Guarantee
What's included?

FORMAT & LICENSE

Choose an option

$0

Not sure what to choose?

Pointer link icon

FOUNDATION

Choose an option

+$0

OPTIONS

Choose Additional Options

+$0

Loading...

Modify this Plan

Receive a free modification quote within 3 business days.

Loading...

Start with a Cost Report

Calculate the cost to build & furnish your home.

Loading...
Loading...

Square Footage Breakdown

Total Heated Area

1,952 sq. ft.

1st Floor

1,376 sq. ft.

2nd Floor

576 sq. ft.

Basement Unfinished

210 sq. ft.

Optional Lower Level

1,116 sq. ft.

Porch, Combined

542 sq. ft.

Beds/Baths

Bedrooms

3 or 4

Full bathrooms

2 or 3

Half bathrooms

1

Foundation Type

Standard Foundations

Walkout

Exterior Walls

Exterior Walls

2x6

Dimensions

Width

53' 0"

Depth

46' 0"

Max Ridge Height

26' 10"

Ceiling Heights

Lower Level

10'

First Floor

10'

Second Floor

10'

Roof Details

Primary Pitch

12 on 12

Framing Type

Stick

Architectural Style

Country

Square Footage Breakdown

Total Heated Area

1,952 sq. ft.

1st Floor

1,376 sq. ft.

2nd Floor

576 sq. ft.

Basement Unfinished

210 sq. ft.

Optional Lower Level

1,116 sq. ft.

Porch, Combined

542 sq. ft.

Beds/Baths

Bedrooms

3 or 4

Full bathrooms

2 or 3

Half bathrooms

1

Foundation Type

Standard Foundations

Walkout

Exterior Walls

Exterior Walls

2x6

Dimensions

Width

53' 0"

Depth

46' 0"

Max Ridge Height

26' 10"

Ceiling Heights

Lower Level

10'

First Floor

10'

Second Floor

10'

Roof Details

Primary Pitch

12 on 12

Framing Type

Stick

* Please note that all sale prices and promotions featured on our website are subject to change without prior notice. While we strive to provide accurate and up-to-date information, occasional discrepancies may occur due to factors beyond our control. We encourage you to verify all details, including pricing and availability, before making any purchase. Exclusions or restrictions may apply to specific promotions. We reserve the right to modify or cancel any sale at our discretion. Thank you for your understanding and happy shopping!Let's go back to the top.